1 Coachwood Drive, ABERFOYLE PARK
Blue Chip Location
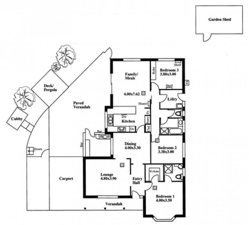
This attractive bluestone 'Fairmont' home is located in the prestigious "The Oaks Estate". Offering a big 923sqm block - with plenty of room for entertaining as well as room for the kids to play or even more off street parking. Featuring three bedrooms, the master with ensuite, walk in robes and bay window, formal lounge and dine with ducted evaporative air conditioning and gas heating for year round comfort. The kitchen overlooks the family room that has sliding doors out to the large decked entertaining area with built in bar. An absolutely ideal home for those who love to spend time outside under the pitched pergola with friends, offering all the 'I wants' this home will appeal to all types.

