1 Lomond Avenue, SEACOMBE HEIGHTS
A winner for the beginner!
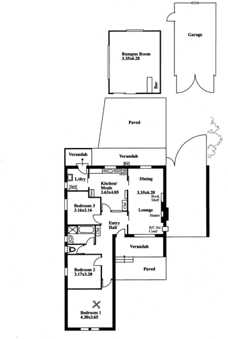
What a great place to commence home ownership in this popular location surrounded by other quality homes and good schools nearby.The home has just undergone a fresh paint and new carpets. Featuring 3 bedrooms (very large master),a detached rumpus/games room, eat in kitchen meals area with new cooker and a formal lounge with heating and cooling.The large allotment around 900m2 is perfect for the growing family and with some cosmetic upgrade this original home is sure to please. Offering a blank canvas and ready for you to add your personal touches and start living.A viewing must, call today!

