1 Luderitz Close, HALLETT COVE
Quality Four Bedroom Residence
Sited to take advantage of the glorious views over the Conservation Park to the ocean, this spacious quality home is a must to inspect internally.
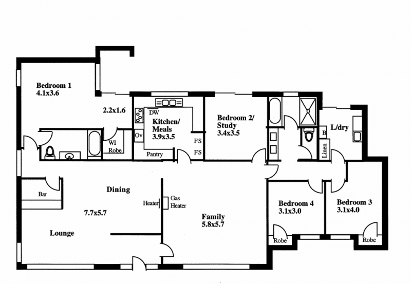
The excellent floorplan provides for easy family living and entertaining alike. The large formal lounge and dine has a built in bar and is handy to the country size timber kitchen with huge pantry and dishwasher.
The master bedroom is situated well away from the three children's bedrooms(with built in robes) and also has a parent's retreat area. The large family room boasts laminated flooring and a large built in cabinet.
Other features include ducted evaporative cooling, gas heating, security and electric security shutters to the front windows of the home.
The large 1062 sqm allotment is beautifully landscaped and includes a separate insulated studio and toolshed at the rear, an extensive undercover entertaining includes a heated spa. There is a double length carport with auto door and extra parking for further vehicles.
All in all a quality home to be proud of!
All images can be viewed on www.barriemagain.com.au
The excellent floorplan provides for easy family living and entertaining alike. The large formal lounge and dine has a built in bar and is handy to the country size timber kitchen with huge pantry and dishwasher.
The master bedroom is situated well away from the three children's bedrooms(with built in robes) and also has a parent's retreat area. The large family room boasts laminated flooring and a large built in cabinet.
Other features include ducted evaporative cooling, gas heating, security and electric security shutters to the front windows of the home.
The large 1062 sqm allotment is beautifully landscaped and includes a separate insulated studio and toolshed at the rear, an extensive undercover entertaining includes a heated spa. There is a double length carport with auto door and extra parking for further vehicles.
All in all a quality home to be proud of!
All images can be viewed on www.barriemagain.com.au

