10 Fraser Avenue, HAPPY VALLEY
The Price is Right!
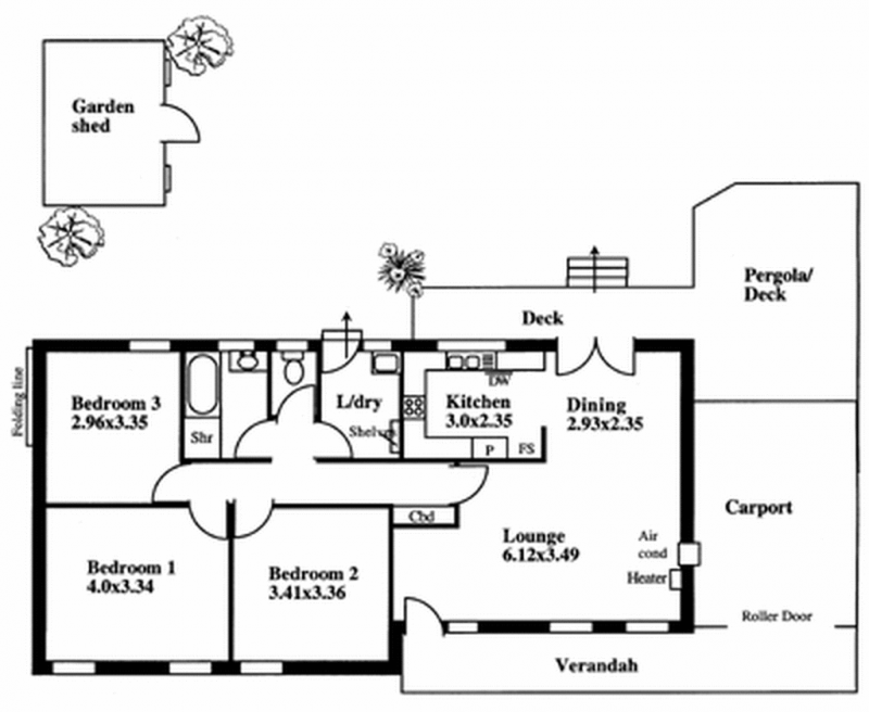
A lovely three bedroom home with polished floorboards throughout, a great new renovated kitchen with gas cooking, dishwasher and loads of cupboard space, newly renovated bathroom and separate laundry.
Good size living room with gas heating,cooling and downlights.
Rear gardens with loads of room for the kids to play safely and you to watch over them whilst sat on the decked balcony on those warm evenings. Single carport UMR with rollerdoor.
Good size living room with gas heating,cooling and downlights.
Rear gardens with loads of room for the kids to play safely and you to watch over them whilst sat on the decked balcony on those warm evenings. Single carport UMR with rollerdoor.

