10 Gladstone Street, ADELAIDE
Under Contract - Contact Andrew Downing!
Glamorous On Gladstone - Renovated Character Cottage!
Cute Cottages located East of Hutt Street are always tightly held and when they do become available are very popular with people looking to live in and soak up the fantastic Village atmosphere for which this location is renowned for.
This lovely example of a Circa 1880 Single Fronted cottage is perfectly positioned on the end of the row, which allows extra natural light to flood in throughout the home. Sympathetically renovated and updated throughout this little beauty is all ready for the lucky new owner!
The Why To Buy 🙂
* Torrens Title
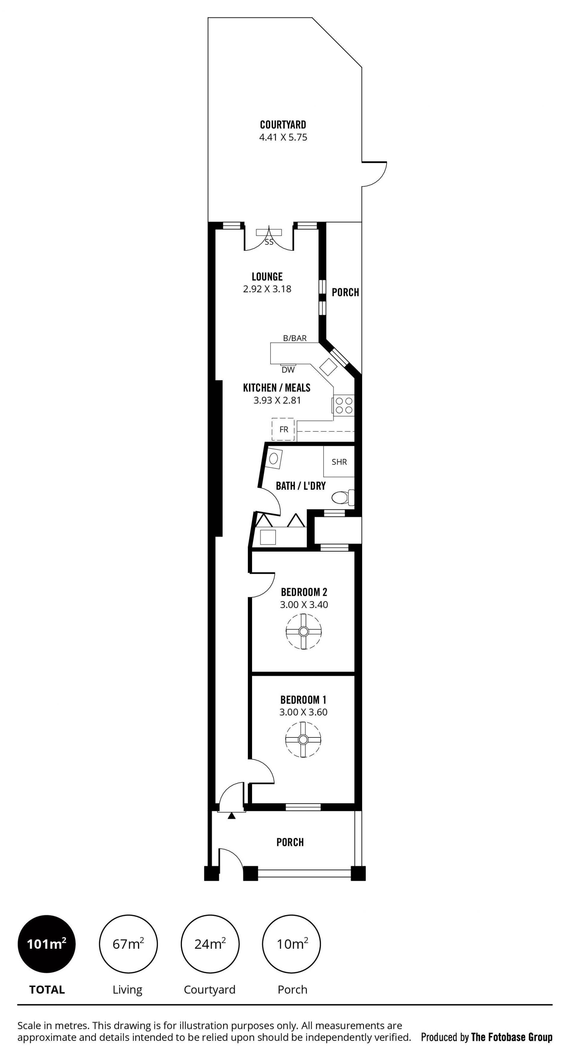
* 2 Double bedrooms
* Gorgeous updated kitchen has gas cooking with adjacent meals area
* Lovely light filled living/lounge room with access to courtyard
* Sparkling renovated bathroom with fold away laundry
* Reverse cycle air conditioning
* Lovely heritage features throughout
* Tranquil rear courtyard with established trees and valuable rear/side access
* 1or 2 Permit car parks available subject to meeting council criteria
Investors note - A perfect property for the Bed & Breakfast scene or popular also with long term tenants.
This gorgeous Bluestone fronted cottage is ideally positioned and literally with a 100 metre stroll you will find yourself sampling some of the finest food and coffee's available in cosmopolitan Hutt Street or walk the other way to Adelaide's gorgeous Parklands.
All information provided has been obtained from sources we believe to be accurate, however, we cannot guarantee the information is accurate and we accept no liability for any errors or omissions (including but not limited to a property's land size, floor plans and size, building age and condition) Interested parties should make their own enquiries and obtain their own legal advice.
For any further information including inspection times please contact,
Andrew Downing, The City Specialist on 0404 882 311
Cute Cottages located East of Hutt Street are always tightly held and when they do become available are very popular with people looking to live in and soak up the fantastic Village atmosphere for which this location is renowned for.
This lovely example of a Circa 1880 Single Fronted cottage is perfectly positioned on the end of the row, which allows extra natural light to flood in throughout the home. Sympathetically renovated and updated throughout this little beauty is all ready for the lucky new owner!
The Why To Buy 🙂
* Torrens Title
* 2 Double bedrooms
* Gorgeous updated kitchen has gas cooking with adjacent meals area
* Lovely light filled living/lounge room with access to courtyard
* Sparkling renovated bathroom with fold away laundry
* Reverse cycle air conditioning
* Lovely heritage features throughout
* Tranquil rear courtyard with established trees and valuable rear/side access
* 1or 2 Permit car parks available subject to meeting council criteria
Investors note - A perfect property for the Bed & Breakfast scene or popular also with long term tenants.
This gorgeous Bluestone fronted cottage is ideally positioned and literally with a 100 metre stroll you will find yourself sampling some of the finest food and coffee's available in cosmopolitan Hutt Street or walk the other way to Adelaide's gorgeous Parklands.
All information provided has been obtained from sources we believe to be accurate, however, we cannot guarantee the information is accurate and we accept no liability for any errors or omissions (including but not limited to a property's land size, floor plans and size, building age and condition) Interested parties should make their own enquiries and obtain their own legal advice.
For any further information including inspection times please contact,
Andrew Downing, The City Specialist on 0404 882 311

