11 Ramsay Avenue, REYNELLA EAST
A Diamond in the Rough!
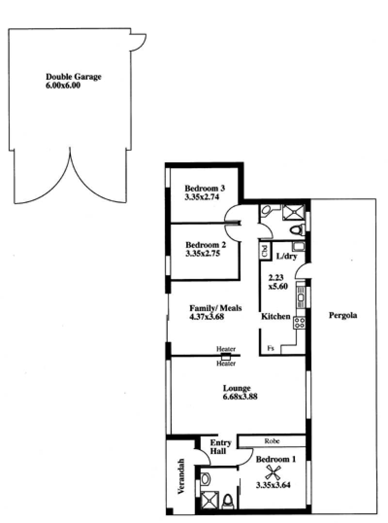
Situated in a much sought after suburb right near the southern expressway is this great 3 bedroom home.
This home will respond well to a bit of work in regards to painting, new carpets, and a general tidy up for any who isn't afraid to roll up their sleeves. Featuring double brick construction, 3 bedrooms, tastefully updated bathroom as well as ensuite, desirable floor plan great for entertaining, double garage, large yard.
Definitely worth a look, for more information or to register your interest contact Stuart Costello on 0418 963 642 or stuart@magainagain.com
This home will respond well to a bit of work in regards to painting, new carpets, and a general tidy up for any who isn't afraid to roll up their sleeves. Featuring double brick construction, 3 bedrooms, tastefully updated bathroom as well as ensuite, desirable floor plan great for entertaining, double garage, large yard.
Definitely worth a look, for more information or to register your interest contact Stuart Costello on 0418 963 642 or stuart@magainagain.com

