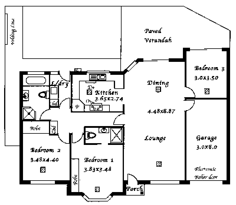
11A Plymouth Avenue, STURT
ONLY ONE YEAR OLD
NEW RELEASE Colonial style homette and almost new with 3 bedrooms, 2 deluxe bathrooms, lovely kitchen open to a very spacious dining, meals, and family room, in nuetral tones throughout, and with ducted reverse cycle air conditioning. Also includes a lock up garage with internal access fro added security which has a drop down attic ladder for extra storage. Private rear yard lawn, and outdoor entertaining with an all weather stratc steel verandah

