12 Heather Road, HAPPY VALLEY
room for all the toys...
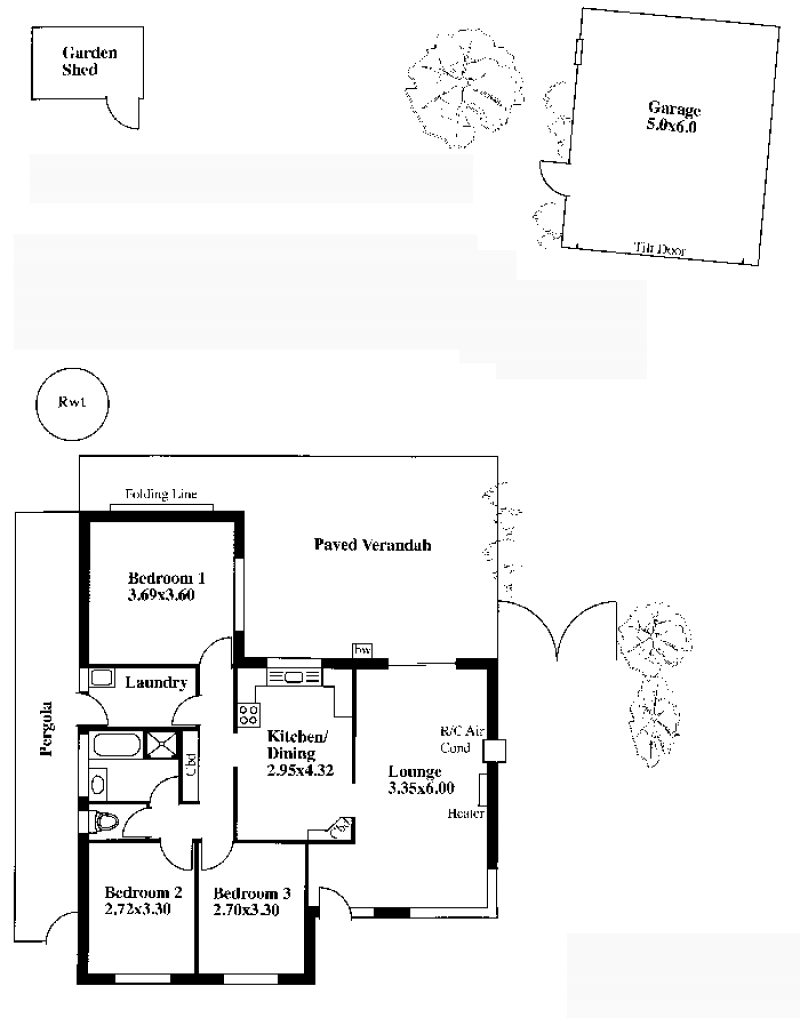
Offering an abundance of off street parking and drive through access to the garage, this affordable home is walking distance to Reynella East Primary school and College, local shopping and public transport.
Featuring a formal lounge with gas heating and air conditioning, large eat in kitchen and three good size bedrooms.
Outside offers plenty of room for the kids to play while you entertain under your all weather verandah. All this and more, this home represents great value for the investor or first home buyer.
Featuring a formal lounge with gas heating and air conditioning, large eat in kitchen and three good size bedrooms.
Outside offers plenty of room for the kids to play while you entertain under your all weather verandah. All this and more, this home represents great value for the investor or first home buyer.

