12 McLaren Street, ADELAIDE
Sold By Andrew Downing,The City Specialist!
Beautiful, Bluestone Fronted, Freestanding Cottage!
# Expressions Of Interest Close 12pm Monday, March 9 Unless Sold Prior #
This gorgeous, circa 1880, Torrens Titled cottage will melt your heart when you first set your eyes on her. Perfectly located on undoubtedly one of Adelaide's finest character laden streets in the heart of the cosmopolitan South East corner of our beautiful city.
As nice as this property is there is still scope to add value! Surrounded by other quality heritage homes, cosmopolitan shopping, dining, entertaining and the beautiful Parklands it is all here and waiting!
The Why To Buy 🙂
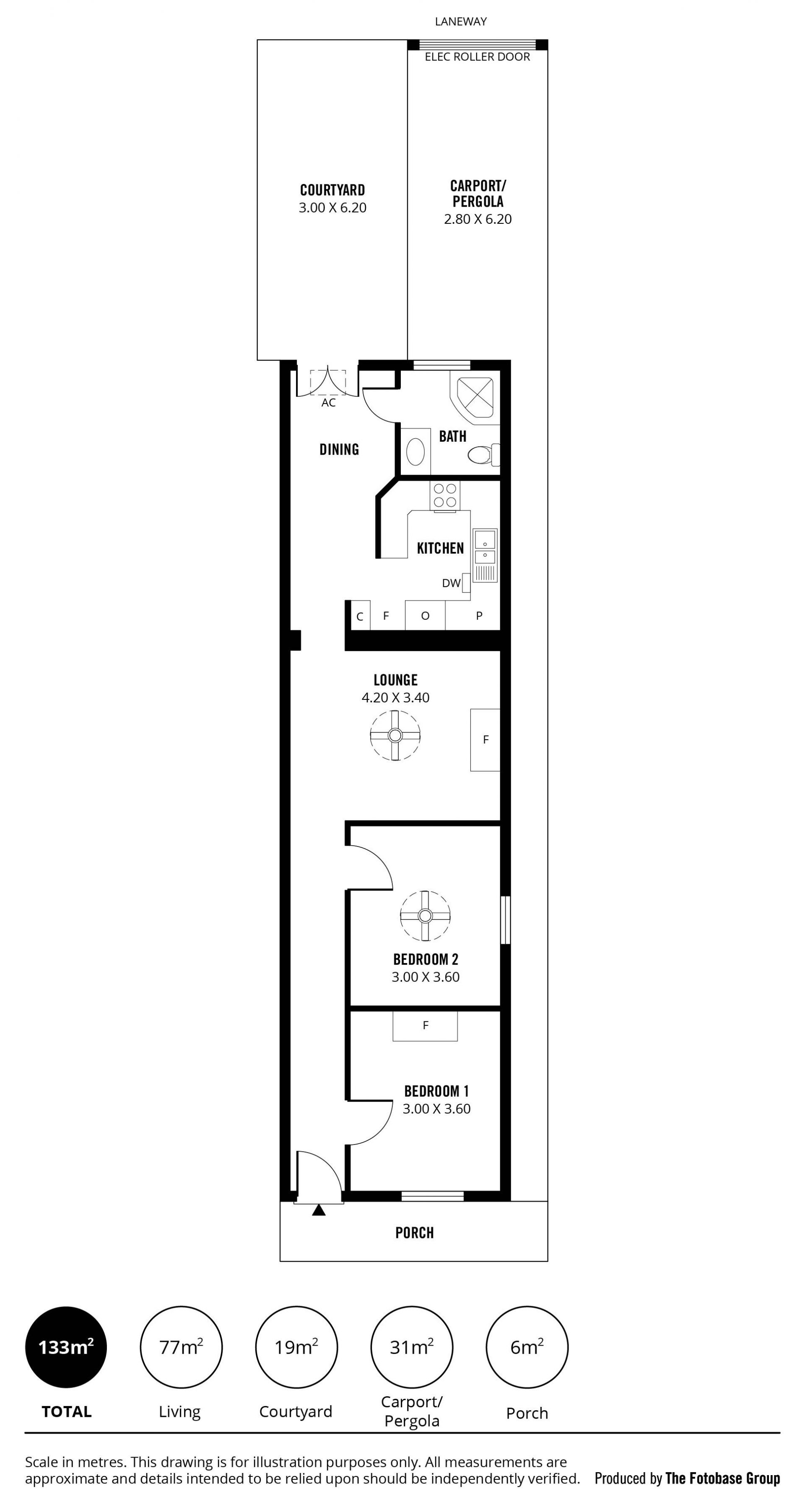
Torrens Title & Freestanding
2 Double bedrooms
Spacious separate lounge
Neat & tidy kitchen with gas cooking and dishwasher
Lovely heritage features including open fireplaces, decorative ceiling roses, high polished skirting boards, polished hardwood floorboards.
Reverse cycle air conditioning and ceiling fans
Functional bathroom with laundry
Light filled dining area with double French doors opening to courtyard
Private North facing rear courtyard
Land size approximately 150sqm
1 Undercover secure car park with auto roller door
Cute Cottages in this location are always tightly held and when they do become available are very popular with people looking to live in and soak up the fantastic Village atmosphere for which this location is renowned for.
Perfect home for professionals, retirees, downsizers or could also be a great investment proposition with similar properties very popular on the Airbnb platform.
All information provided has been obtained from sources we believe to be accurate, however, we cannot guarantee the information is accurate and we accept no liability for any errors or omissions (including but not limited to a property's land size, floor plans and size, building age and condition) Interested parties should make their own enquiries and obtain their own legal advice. Should this property be scheduled for auction, the Vendor's Statement may be inspected at our office, 97 Wright Street, Adelaide for 3 consecutive business days immediately preceding the auction and at the auction for 30 minutes before it starts.
For any further information including inspection times please contact,
Andrew Downing, The City Specialist on 0404 882 311.
# Expressions Of Interest Close 12pm Monday, March 9 Unless Sold Prior #
This gorgeous, circa 1880, Torrens Titled cottage will melt your heart when you first set your eyes on her. Perfectly located on undoubtedly one of Adelaide's finest character laden streets in the heart of the cosmopolitan South East corner of our beautiful city.
As nice as this property is there is still scope to add value! Surrounded by other quality heritage homes, cosmopolitan shopping, dining, entertaining and the beautiful Parklands it is all here and waiting!
The Why To Buy 🙂
Torrens Title & Freestanding
2 Double bedrooms
Spacious separate lounge
Neat & tidy kitchen with gas cooking and dishwasher
Lovely heritage features including open fireplaces, decorative ceiling roses, high polished skirting boards, polished hardwood floorboards.
Reverse cycle air conditioning and ceiling fans
Functional bathroom with laundry
Light filled dining area with double French doors opening to courtyard
Private North facing rear courtyard
Land size approximately 150sqm
1 Undercover secure car park with auto roller door
Cute Cottages in this location are always tightly held and when they do become available are very popular with people looking to live in and soak up the fantastic Village atmosphere for which this location is renowned for.
Perfect home for professionals, retirees, downsizers or could also be a great investment proposition with similar properties very popular on the Airbnb platform.
All information provided has been obtained from sources we believe to be accurate, however, we cannot guarantee the information is accurate and we accept no liability for any errors or omissions (including but not limited to a property's land size, floor plans and size, building age and condition) Interested parties should make their own enquiries and obtain their own legal advice. Should this property be scheduled for auction, the Vendor's Statement may be inspected at our office, 97 Wright Street, Adelaide for 3 consecutive business days immediately preceding the auction and at the auction for 30 minutes before it starts.
For any further information including inspection times please contact,
Andrew Downing, The City Specialist on 0404 882 311.

