123A Ifould Street, ADELAIDE
Sold By Andrew Downing, The City Specialist!
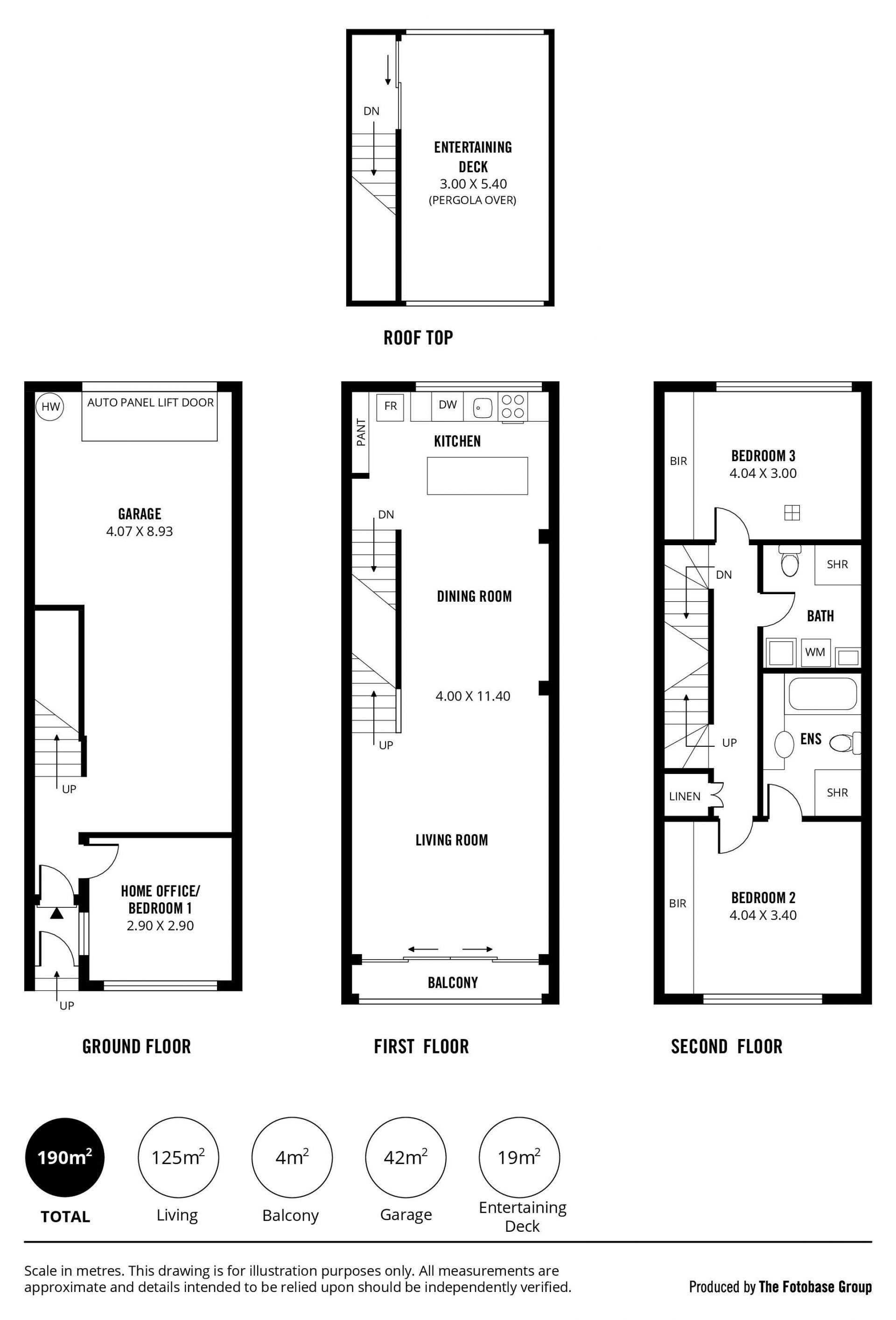
This low maintenance beauty has all the City MUST HAVES - 3 Beds/2 and a home office, 2 Baths & 2 Cars!
Immaculate in presentation and impressive in design this quality built townhouse stands out from the crowd. A great inner city location situated between Pulteney & Hutt Streets allows easy access to the many delights our beautiful city has to offer.
With a magnificent large roof deck entertaining area affording spectacular views of the city & hills you have the perfect spot to unwind after those busy days at work or for a group of friends to party the night away!
The Why To Buy 🙂
3 Spacious bedrooms or 2 and home office/study
Master has built in robe & full size ensuite
Spacious open plan dining/lounge with balcony access
Modern stylish kitchen with quality Euro appliances
Ducted reverse cycle air conditioning
Secure entry with intercom access & alarm system
Quality fixtures & fittings throughout
Magnificent Roof Top Entertaining area with great views
Double garage with secure gated entry
Will ideally suit the busy city professionals, first home buyers, young families, people looking to live and work from home or investors, could also be a good lock up and leave city base.
Close to everything that our beautiful city offers including superb public and private schools, public transport the list goes on ...............
All information provided has been obtained from sources we believe to be accurate, however, we cannot guarantee the information is accurate and we accept no liability for any errors or omissions (including but not limited to a property's land size, floor plans and size, building age and condition) Interested parties should make their own enquiries and obtain their own legal advice.
For any further information please contact,
Andrew Downing, The City Specialist on 0404 882 311 or Chris Xu 0433 770 616
Immaculate in presentation and impressive in design this quality built townhouse stands out from the crowd. A great inner city location situated between Pulteney & Hutt Streets allows easy access to the many delights our beautiful city has to offer.
With a magnificent large roof deck entertaining area affording spectacular views of the city & hills you have the perfect spot to unwind after those busy days at work or for a group of friends to party the night away!
The Why To Buy 🙂
3 Spacious bedrooms or 2 and home office/study
Master has built in robe & full size ensuite
Spacious open plan dining/lounge with balcony access
Modern stylish kitchen with quality Euro appliances
Ducted reverse cycle air conditioning
Secure entry with intercom access & alarm system
Quality fixtures & fittings throughout
Magnificent Roof Top Entertaining area with great views
Double garage with secure gated entry
Will ideally suit the busy city professionals, first home buyers, young families, people looking to live and work from home or investors, could also be a good lock up and leave city base.
Close to everything that our beautiful city offers including superb public and private schools, public transport the list goes on ...............
All information provided has been obtained from sources we believe to be accurate, however, we cannot guarantee the information is accurate and we accept no liability for any errors or omissions (including but not limited to a property's land size, floor plans and size, building age and condition) Interested parties should make their own enquiries and obtain their own legal advice.
For any further information please contact,
Andrew Downing, The City Specialist on 0404 882 311 or Chris Xu 0433 770 616

