138/220 Greenhill Road, EASTWOOD
Sold By Andrew Downing!
Pristine Penthouse With Panoramic Parkland Views, Sublime!
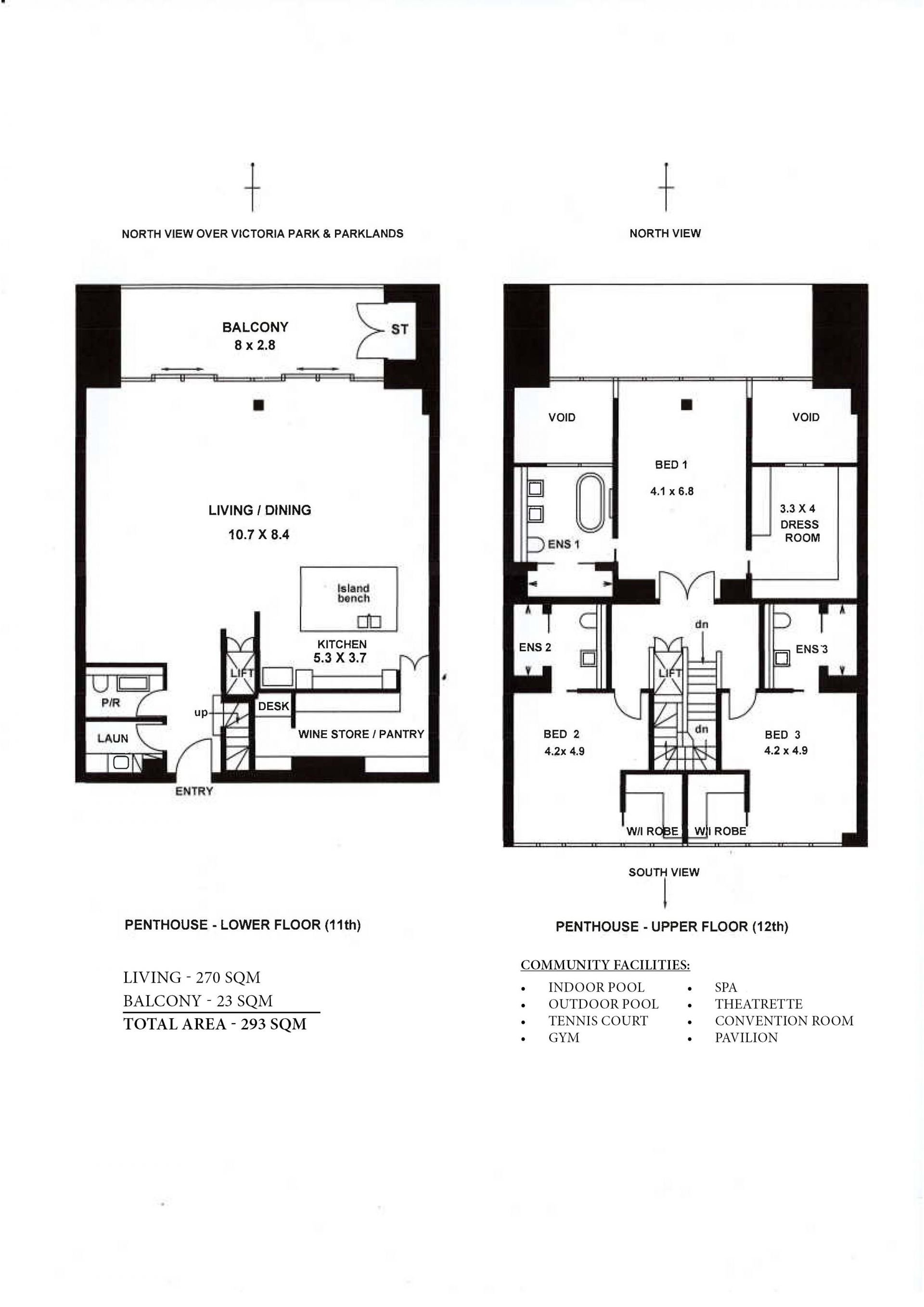
This magnificent Penthouse encompassing over 293sqm of luxury living over 2 levels (with internal lift) features the finest of fixtures and fittings throughout. This is one of the very few properties where the photos cannot capture the high quality of the internal fit out or the absolute breath - taking parkland vistas, which importantly can never be built out!
With pride of position in the popular Air Apartments, famous for having the best resort style facilities in Adelaide you are guaranteed of an exciting low maintenance lifestyle which is enhanced further by having the luxury of 4 carparks with 2 of them being able to be securely garaged or could also be used as a workshop/storage or man-cave?
The Why To Buy 🙂
3 King size bedrooms all with WIR's, opulent ensuite's and views
Luxurious master suite has huge dressing room
Expansive living/dining with vaulted 3.6M ceilings
Elegant kitchen with double sized island bench and huge Butlers pantry
Ducted reverse cycle air conditioning with individual zoning and temperature control
Downstairs powder room
Internal personal lift between floors, wheel chair friendly
Secure access with video intercom and designated lift
Automatic blinds throughout
Magnificent private North facing balcony with spectacular views
4 Secure underground car parks
Flexible settlement conditions
Resort features include indoor and outdoor pools, Spa, Sauna, Tennis Court, Gym, Movie Theatre, Entertaining Pavillion with BBQ and conference Room.
Properties of this size and standard very rarely become available and with a location that allows ease of access to and from the City, Public transport and the Parklands on your doorstep you have all the ingredients for an exciting and luxurious lifestyle!
All information provided has been obtained from sources we believe to be accurate, however, we cannot guarantee the information is accurate and we accept no liability for any errors or omissions (including but not limited to a property's land size, floor plans and size, building age and condition) Interested parties should make their own enquiries and obtain their own legal advice.
For any further information including organising an inspection please call,
Andrew Downing on 0404 882 311.
This magnificent Penthouse encompassing over 293sqm of luxury living over 2 levels (with internal lift) features the finest of fixtures and fittings throughout. This is one of the very few properties where the photos cannot capture the high quality of the internal fit out or the absolute breath - taking parkland vistas, which importantly can never be built out!
With pride of position in the popular Air Apartments, famous for having the best resort style facilities in Adelaide you are guaranteed of an exciting low maintenance lifestyle which is enhanced further by having the luxury of 4 carparks with 2 of them being able to be securely garaged or could also be used as a workshop/storage or man-cave?
The Why To Buy 🙂
3 King size bedrooms all with WIR's, opulent ensuite's and views
Luxurious master suite has huge dressing room
Expansive living/dining with vaulted 3.6M ceilings
Elegant kitchen with double sized island bench and huge Butlers pantry
Ducted reverse cycle air conditioning with individual zoning and temperature control
Downstairs powder room
Internal personal lift between floors, wheel chair friendly
Secure access with video intercom and designated lift
Automatic blinds throughout
Magnificent private North facing balcony with spectacular views
4 Secure underground car parks
Flexible settlement conditions
Resort features include indoor and outdoor pools, Spa, Sauna, Tennis Court, Gym, Movie Theatre, Entertaining Pavillion with BBQ and conference Room.
Properties of this size and standard very rarely become available and with a location that allows ease of access to and from the City, Public transport and the Parklands on your doorstep you have all the ingredients for an exciting and luxurious lifestyle!
All information provided has been obtained from sources we believe to be accurate, however, we cannot guarantee the information is accurate and we accept no liability for any errors or omissions (including but not limited to a property's land size, floor plans and size, building age and condition) Interested parties should make their own enquiries and obtain their own legal advice.
For any further information including organising an inspection please call,
Andrew Downing on 0404 882 311.

