14 Orana Drive, MORPHETT VALE
IDEAL FIRST HOME OR INVESTMENT
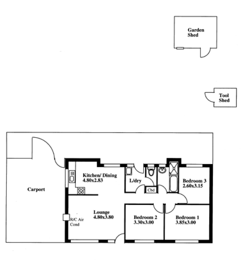
Great residential location near to schools, shopping, and transport. Features 3 bedrooms, open plan kitchen and dining, spacious lounge room with a sunny outlook. Set on a large allotment of 800 sqm approx with a 22 metre frontage and a private, large backyard. Opposite primary school, and only a short distance into Morphett Vale sopping strip on Main South Rd or 5 minutes drive into Colonades Shopping Centre, and Christies Beach.

