18 Burwood Avenue, NAILSWORTH
Sold By Andrew Downing!
Gorgeous Freestone Fronted Villa With North Facing Rear Extension!
Beautiful on Burwood is this circa 1905 stone fronted home, set on approximately 838 sqm of lovely maicured gardens on one of the best tree lined Streets in Nailsworth.
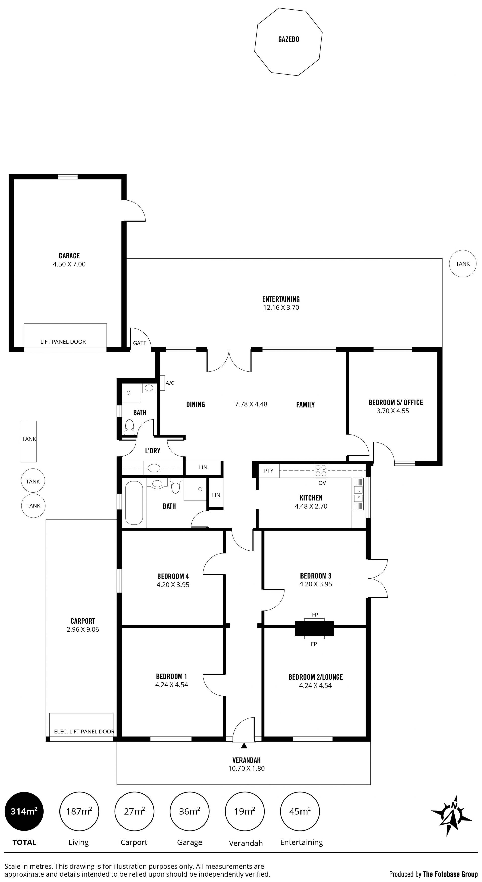
A sympathetic union between the old and the new has created a wonderful floor plan which could accomadate multiple living areas, up to 5 bedrooms, opportunities to work from home or investment potential making this stunning property popular for all buyer groups.
The Why To Buy 🙂
5 Large bedrooms or 4 and a home office/study
Spacious light filled living & dining
Lovely tidy kitchen with plenty of cupboards and gas cooking
Expansive North facing, undercover entertaining area
2 Sparkling bathrooms
Many stunning original heritage features including Stain glass windows, decorative cornicing, open fire places, polished hardwood floors, high skirting boards, lovely light fittings etc.
Reverse cycle air conditioning
Secure alarm system
Land size is 838sqm of lovely gardens with mature fruit trees
Garden shed
Solar panels and rainwater tanks
Undercover car parking for 2 cars
Perfectly positioned on a beautiful tree lined street close to the city (6kms approx) and all the inner northern suburbs have to offer including :- Shopping at Northpark Shopping Centre, Regency Plaza and Sefton Plaza is only a few hundred metres away and public transport is as close as a short walk to Main North Road.
Local Schools include Nailsworth Primary, Prospect North Primary plus Our Lady of the Sacred Heart College. Also zoned for the Botanic and Adelaide High Schools. Prospect Oval is across the road and Broadview Oval and Prospect Gardens Narnu Wirra Park are close by.
For any further information please contact, Andrew Downing on 0404 882 311.
All information provided has been obtained from sources we believe to be accurate, however, we cannot guarantee the information is accurate and we accept no liability for any errors or omissions (including but not limited to a property's land size, floor plans and size, building age and condition) Interested parties should make their own enquiries and obtain their own legal advice.
Beautiful on Burwood is this circa 1905 stone fronted home, set on approximately 838 sqm of lovely maicured gardens on one of the best tree lined Streets in Nailsworth.
A sympathetic union between the old and the new has created a wonderful floor plan which could accomadate multiple living areas, up to 5 bedrooms, opportunities to work from home or investment potential making this stunning property popular for all buyer groups.
The Why To Buy 🙂
5 Large bedrooms or 4 and a home office/study
Spacious light filled living & dining
Lovely tidy kitchen with plenty of cupboards and gas cooking
Expansive North facing, undercover entertaining area
2 Sparkling bathrooms
Many stunning original heritage features including Stain glass windows, decorative cornicing, open fire places, polished hardwood floors, high skirting boards, lovely light fittings etc.
Reverse cycle air conditioning
Secure alarm system
Land size is 838sqm of lovely gardens with mature fruit trees
Garden shed
Solar panels and rainwater tanks
Undercover car parking for 2 cars
Perfectly positioned on a beautiful tree lined street close to the city (6kms approx) and all the inner northern suburbs have to offer including :- Shopping at Northpark Shopping Centre, Regency Plaza and Sefton Plaza is only a few hundred metres away and public transport is as close as a short walk to Main North Road.
Local Schools include Nailsworth Primary, Prospect North Primary plus Our Lady of the Sacred Heart College. Also zoned for the Botanic and Adelaide High Schools. Prospect Oval is across the road and Broadview Oval and Prospect Gardens Narnu Wirra Park are close by.
For any further information please contact, Andrew Downing on 0404 882 311.
All information provided has been obtained from sources we believe to be accurate, however, we cannot guarantee the information is accurate and we accept no liability for any errors or omissions (including but not limited to a property's land size, floor plans and size, building age and condition) Interested parties should make their own enquiries and obtain their own legal advice.

