186 Branson Road, TATACHILLA
Lifestyle, Peace and Tranquility
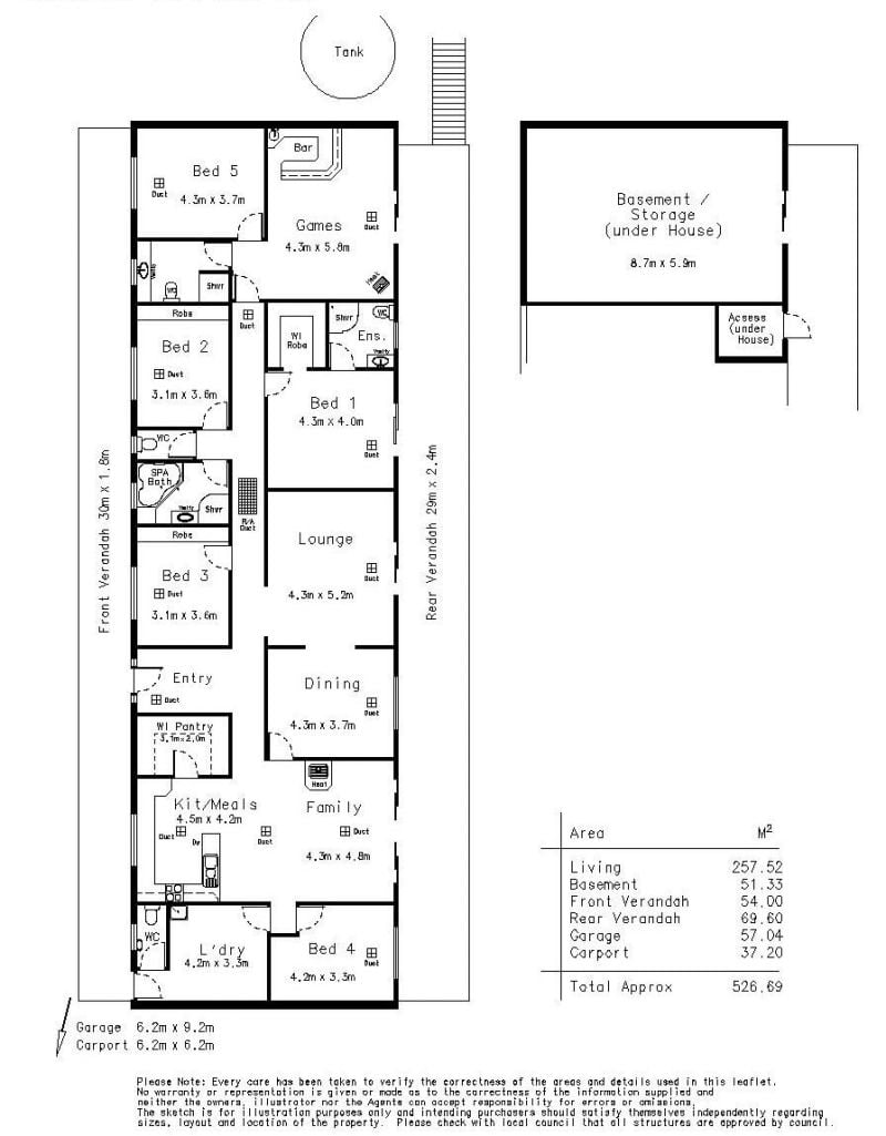
This 5 bedroom, 3 bathroom steel framed home situated on 10 plus magnificent acres, with a private valley outlook, offers the enjoyment of natural beauty with an abundance of bird and wildlife.
Enter the home through the large separate entrance hall with floating floors, to the right is the spacious open plan kitchen & family room. The modern kitchen features a dishwasher & huge walk-in pantry while overlooking the family room with combustion heater & sliding door access to the rear verandah. Also down this end of the home is the 5th bedroom & the laundry with separate toilet. Venture down to the other side of the home and you'll notice the formal lounge & formal dining room on your right and to your left is another bedroom with built-in robe.
Further down the hallway is the master suite offering walk-in robe & ensuite.
Opposite this is the family bathroom with shower, spa bath & separate toilet and the 4th bedroom. Towards the end of the home is a teenagers/parents retreat offering a large lounge with combustion heater and built in bar, bedroom and bathroom. All the rooms on this side of the home have easy access to the verandah to take in the magnificent view.
All of your storage needs are taken care of in the way of the under house basement, measuring 8.7m x 5.9m, with a sliding door for easy access. Other features include ducted & zoned reverse cycle air conditioning, ornate ceiling roses, neutral tones with a splash of colour & solar panels.
Outside you can entertain on either, the front or rear, full length verandah while enjoying the peaceful outlook of almond trees, vineyards and the hills. The beautiful gardens entice you to wander around or just sit and soak in the beauty of your surroundings among the abundant bird & wildlife. The garden offers almond trees which if you wish could become an income stream (stc), large chook pen, access to the running bore, large rain water storage, fenced horse yard and plenty of room to ride the motorbikes around.
An opportunity to purchase a character homestead with an enviable lifestyle of natural beauty and seclusion yet only 5 minutes to McLaren Vale, Tatachilla School, shops and transport.
Contact Jackie Branden to submit your offer to purchase this wonderful lifestyle or to arrange a viewing time.
RLA 250556
www w.raywhiteportnoarlunga.com.au
Enter the home through the large separate entrance hall with floating floors, to the right is the spacious open plan kitchen & family room. The modern kitchen features a dishwasher & huge walk-in pantry while overlooking the family room with combustion heater & sliding door access to the rear verandah. Also down this end of the home is the 5th bedroom & the laundry with separate toilet. Venture down to the other side of the home and you'll notice the formal lounge & formal dining room on your right and to your left is another bedroom with built-in robe.
Further down the hallway is the master suite offering walk-in robe & ensuite.
Opposite this is the family bathroom with shower, spa bath & separate toilet and the 4th bedroom. Towards the end of the home is a teenagers/parents retreat offering a large lounge with combustion heater and built in bar, bedroom and bathroom. All the rooms on this side of the home have easy access to the verandah to take in the magnificent view.
All of your storage needs are taken care of in the way of the under house basement, measuring 8.7m x 5.9m, with a sliding door for easy access. Other features include ducted & zoned reverse cycle air conditioning, ornate ceiling roses, neutral tones with a splash of colour & solar panels.
Outside you can entertain on either, the front or rear, full length verandah while enjoying the peaceful outlook of almond trees, vineyards and the hills. The beautiful gardens entice you to wander around or just sit and soak in the beauty of your surroundings among the abundant bird & wildlife. The garden offers almond trees which if you wish could become an income stream (stc), large chook pen, access to the running bore, large rain water storage, fenced horse yard and plenty of room to ride the motorbikes around.
An opportunity to purchase a character homestead with an enviable lifestyle of natural beauty and seclusion yet only 5 minutes to McLaren Vale, Tatachilla School, shops and transport.
Contact Jackie Branden to submit your offer to purchase this wonderful lifestyle or to arrange a viewing time.
RLA 250556
www w.raywhiteportnoarlunga.com.au

