19 Wren Street, O'HALLORAN HILL
the smart choice for the growing family
Just minutes walk to O'Halloran Hill Kindergarten, local shops plus parks and playgrounds, this large solid brick home is perfect for any growing family looking for room to grow and space to play.
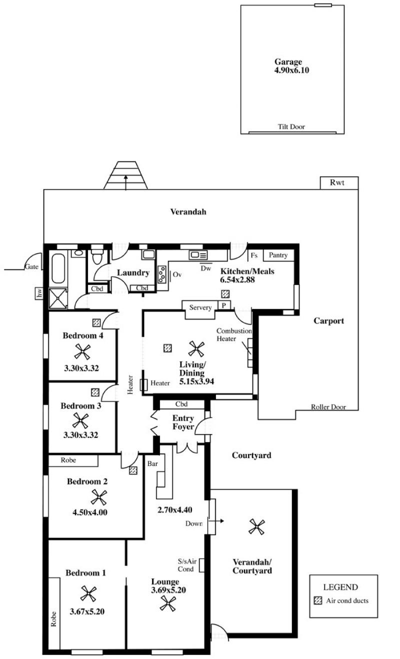
Situated on a huge 964 sqm block, it features four generous bedrooms, including extra large master suite and second bedroom both with robes, big family/rumpus room with timber bar, updated bathroom, formal lounge with cosy combustion fire and servery leading to the beautifully updated kitchen, featuring stainless steel appliances, 5 burner gas cooker, dishwasher, an abundance of cupboard space and eat in meals area.
Outside there is something for everyone! The semi enclosed entertaining area is perfect all year round for relaxing with friends & family, large carport with room for multiple cars plus trailer or boat and a big powererd shed/workshop for the boy's toys along with a large backyard for the kids to play and your own fruit trees including pears, apples, oranges, mandarins and more!
With ducted evaporative cooling, a split system, plus the gas heater and combustion heater you will be comfortable rain, hail or shine. So many added extras including beautiful polished timber floors, new carpet throughout the four bedrooms, new instant gas hot water system, rollershutters the list goes on! This lovely home is ready and waiting for its new owners to move in & enjoy with even the possibility of developing down the track, (STCC) this is a sure winner for the serious buyer.
Situated on a huge 964 sqm block, it features four generous bedrooms, including extra large master suite and second bedroom both with robes, big family/rumpus room with timber bar, updated bathroom, formal lounge with cosy combustion fire and servery leading to the beautifully updated kitchen, featuring stainless steel appliances, 5 burner gas cooker, dishwasher, an abundance of cupboard space and eat in meals area.
Outside there is something for everyone! The semi enclosed entertaining area is perfect all year round for relaxing with friends & family, large carport with room for multiple cars plus trailer or boat and a big powererd shed/workshop for the boy's toys along with a large backyard for the kids to play and your own fruit trees including pears, apples, oranges, mandarins and more!
With ducted evaporative cooling, a split system, plus the gas heater and combustion heater you will be comfortable rain, hail or shine. So many added extras including beautiful polished timber floors, new carpet throughout the four bedrooms, new instant gas hot water system, rollershutters the list goes on! This lovely home is ready and waiting for its new owners to move in & enjoy with even the possibility of developing down the track, (STCC) this is a sure winner for the serious buyer.

