201 Gilbert Street, ADELAIDE
Sold By Andrew Downing, The City Specialist!
What a unique opportunity is on offer with this gorgeous, Circa 1880 Victorian Terrace House. Currently disposed as two separate dwellings, 201a downstairs & 201b upstairs and a portion of land at the rear which could accommodate 3 car parks.
201a has recently been used as a Lawyers office utilising the shop front as the office and living at the rear returning $380.00 per week.
201b has recently been used as a residential property returning $420.00 per week.
This spectacular property has so many possibilities such as restoring back to its original glory and enjoying the charm of a Terrace home?
Maybe you could work from downstairs and live upstairs or just keep it as it is now, a high returning investment?
You could also subdivide the land at the back of the house for another dwelling or extend and beautify the existing home?
Last but not least you could demolish the existing property and design a new development in this thriving location?
Obviously all of these options are subject to the necessary council consents.
The Why To Buy 🙂
Torrens Title
201a -
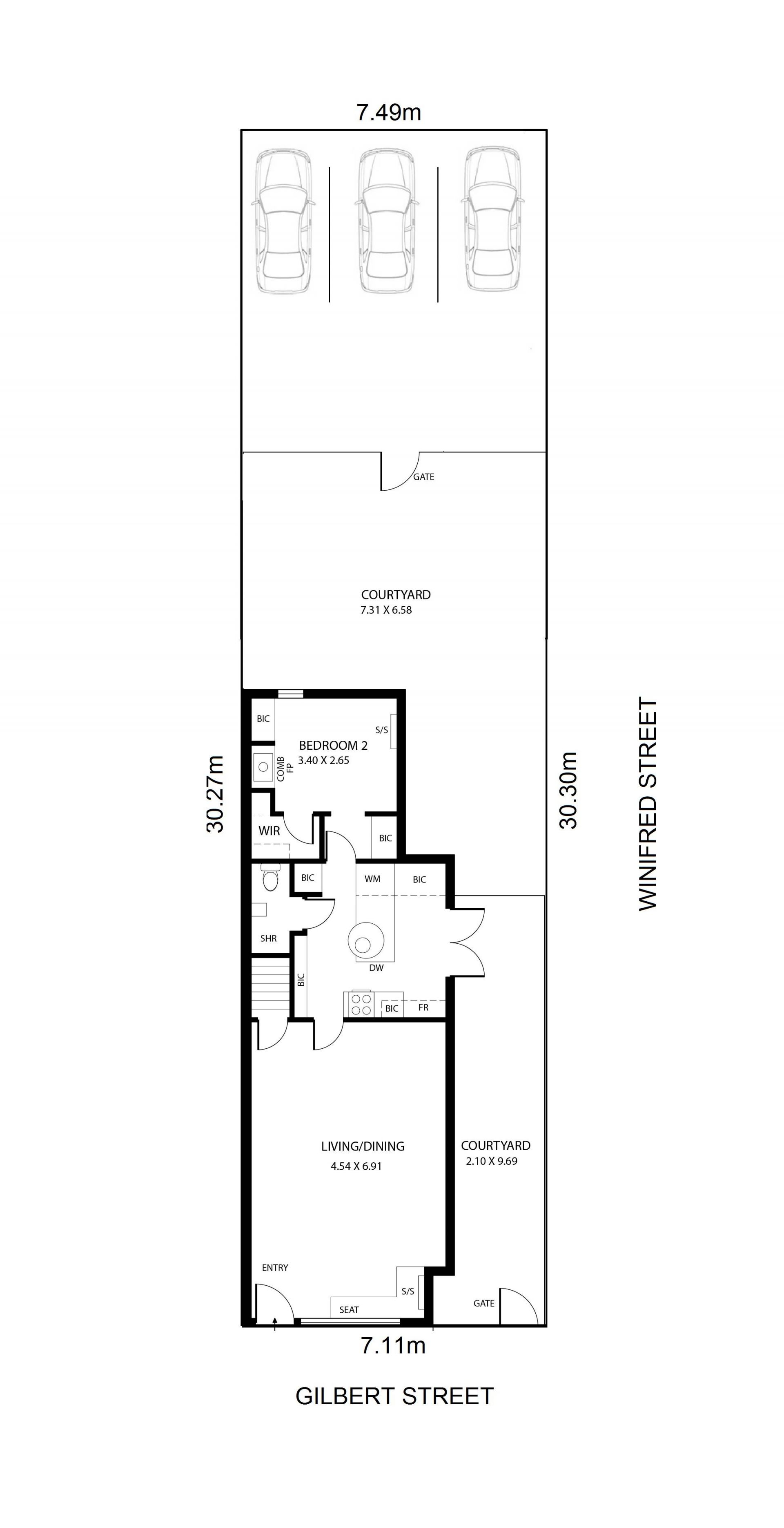
Large living/ office shop front
Stunning kitchen which was recognized with a design award
Under floor heating
Funky bathroom
1 Double bedroom with W.I.R
R/C A/C & Pot belly stove
Private side courtyard
201b -
Expansive living & dining with trendy exposed brick
Designer kitchen, dishwasher & island bench
Opulent bathroom with free standing bath
Large loft bedroom
Lovely North facing balcony with lawn feature
R/c a/c & Solar panels
Large private rear courtyard
Car parking for up to 3 Cars
This Stunning character house with funky upgrades is perfectly suited to take advantage of the eclectic South West corner of the city
All information provided has been obtained from sources we believe to be accurate, however, we cannot guarantee the information is accurate and we accept no liability for any errors or omissions (including but not limited to a property's land size, floor plans and size, building age and condition) Interested parties should make their own enquiries and obtain their own legal advice. Should this property be scheduled for auction, the Vendor's Statement may be inspected at any the office of City Realty, 43 Sturt Street Adelaide for 3 consecutive business days immediately preceding the auction and at the auction for 30 minutes before it starts.
For any further information please contact, Andrew Downing, The City Specialist 0404 882 311 or Chris Xu 0433 770 616
201a has recently been used as a Lawyers office utilising the shop front as the office and living at the rear returning $380.00 per week.
201b has recently been used as a residential property returning $420.00 per week.
This spectacular property has so many possibilities such as restoring back to its original glory and enjoying the charm of a Terrace home?
Maybe you could work from downstairs and live upstairs or just keep it as it is now, a high returning investment?
You could also subdivide the land at the back of the house for another dwelling or extend and beautify the existing home?
Last but not least you could demolish the existing property and design a new development in this thriving location?
Obviously all of these options are subject to the necessary council consents.
The Why To Buy 🙂
Torrens Title
201a -
Large living/ office shop front
Stunning kitchen which was recognized with a design award
Under floor heating
Funky bathroom
1 Double bedroom with W.I.R
R/C A/C & Pot belly stove
Private side courtyard
201b -
Expansive living & dining with trendy exposed brick
Designer kitchen, dishwasher & island bench
Opulent bathroom with free standing bath
Large loft bedroom
Lovely North facing balcony with lawn feature
R/c a/c & Solar panels
Large private rear courtyard
Car parking for up to 3 Cars
This Stunning character house with funky upgrades is perfectly suited to take advantage of the eclectic South West corner of the city
All information provided has been obtained from sources we believe to be accurate, however, we cannot guarantee the information is accurate and we accept no liability for any errors or omissions (including but not limited to a property's land size, floor plans and size, building age and condition) Interested parties should make their own enquiries and obtain their own legal advice. Should this property be scheduled for auction, the Vendor's Statement may be inspected at any the office of City Realty, 43 Sturt Street Adelaide for 3 consecutive business days immediately preceding the auction and at the auction for 30 minutes before it starts.
For any further information please contact, Andrew Downing, The City Specialist 0404 882 311 or Chris Xu 0433 770 616

