2/14 Ellis Avenue, O'HALLORAN HILL
UNDER CONTRACT
Please contact Robbie Leigh to discuss a viewing time.
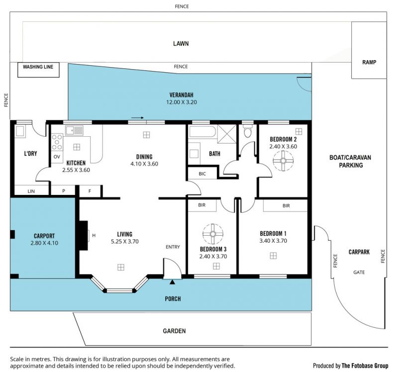
With all the hard work already done, this spacious, renovated, immaculately kept three-bedroom home in the highly sought-after suburb of O'Halloran Hill is move-in ready! This unit is sizeable, yet has a low maintenance yard and a functional floor plan.
It boasts modern flooring, renovated bathroom and toilet, zoned and ducted reverse-cycle heating and cooling. Carport and visitor driveway access and space along the side of the home also.
This is ideal for first home buyers, investors and those looking to downsize without downgrading on space or lifestyle.
As we enter the home, we have our spacious living area. This area features additional gas heating option and large front-facing window that spills an abundance of natural light into the room. You then pass through to your open kitchen and dining area which can comfortably seat the entire family and has ease of access to your large pergola area, ideal for entertaining friends and family.
The kitchen in the home features modern lighting, ample bench, cupboard and storage space, electronic temperature controlled hot water, stainless steel modern appliances, (gas cooktop and electric oven). Through the kitchen you will find the large laundry which also has plenty of cupboard storage and access to outside washing line and pergola.
The spacious master bedroom which is serviced by a front-facing window and built-in robe. Bedroom 2 and 3 is also of good size and is equipped with a built-in robes & ceiling fans. All bedrooms are serviced by the homes main modern bathroom which is ultra-classy, tiled to the ceiling, includes a bath, modern vanity and downlights.
Like the inside of the home, the outside is just as impressive. The front yard has well-presented garden and features a designated carport, second driveway, gate through to additional parking for car/boat/caravan. The backyard features a paved area under the pergola which is perfect for entertaining, manicured lawn and garden beds with perfect pencil pines.
As for location, the property is within minutes to O'halloran Hill Recreation Park, several ovals and playgrounds, the Township of Old Reynella, Old Reynella Interchange, schools & local amenities. There is also a easy access to the Southern Expressway via Old South Road - Southern living doesn't get much better than this!
Highlights:
- Three spacious bedrooms with built in robes
- Zoned reverse cycle air-conditioning throughout
- Stainless steel appliances (oven and stove)
- Modern bathroom and toilet
- Beautiful yet low maintenance allotment
- Easy access to Southern Expressway
Disclaimer: All floor plans, photos and text are for illustration purposes only and are not intended to be part of any contract. All measurements are approximate and details intended to be relied upon should be independently verified.
With all the hard work already done, this spacious, renovated, immaculately kept three-bedroom home in the highly sought-after suburb of O'Halloran Hill is move-in ready! This unit is sizeable, yet has a low maintenance yard and a functional floor plan.
It boasts modern flooring, renovated bathroom and toilet, zoned and ducted reverse-cycle heating and cooling. Carport and visitor driveway access and space along the side of the home also.
This is ideal for first home buyers, investors and those looking to downsize without downgrading on space or lifestyle.
As we enter the home, we have our spacious living area. This area features additional gas heating option and large front-facing window that spills an abundance of natural light into the room. You then pass through to your open kitchen and dining area which can comfortably seat the entire family and has ease of access to your large pergola area, ideal for entertaining friends and family.
The kitchen in the home features modern lighting, ample bench, cupboard and storage space, electronic temperature controlled hot water, stainless steel modern appliances, (gas cooktop and electric oven). Through the kitchen you will find the large laundry which also has plenty of cupboard storage and access to outside washing line and pergola.
The spacious master bedroom which is serviced by a front-facing window and built-in robe. Bedroom 2 and 3 is also of good size and is equipped with a built-in robes & ceiling fans. All bedrooms are serviced by the homes main modern bathroom which is ultra-classy, tiled to the ceiling, includes a bath, modern vanity and downlights.
Like the inside of the home, the outside is just as impressive. The front yard has well-presented garden and features a designated carport, second driveway, gate through to additional parking for car/boat/caravan. The backyard features a paved area under the pergola which is perfect for entertaining, manicured lawn and garden beds with perfect pencil pines.
As for location, the property is within minutes to O'halloran Hill Recreation Park, several ovals and playgrounds, the Township of Old Reynella, Old Reynella Interchange, schools & local amenities. There is also a easy access to the Southern Expressway via Old South Road - Southern living doesn't get much better than this!
Highlights:
- Three spacious bedrooms with built in robes
- Zoned reverse cycle air-conditioning throughout
- Stainless steel appliances (oven and stove)
- Modern bathroom and toilet
- Beautiful yet low maintenance allotment
- Easy access to Southern Expressway
Disclaimer: All floor plans, photos and text are for illustration purposes only and are not intended to be part of any contract. All measurements are approximate and details intended to be relied upon should be independently verified.

