214 Gilbert Street, ADELAIDE
Sold By Andrew Downing, The City Specialist!
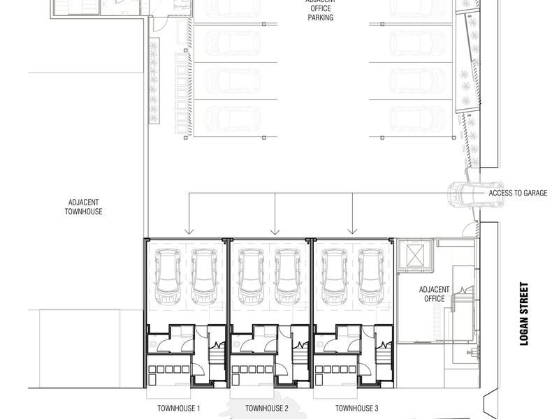
3 Brand new, Torrens Title properties of this size & quality rarely become available in the City, especially now as every piece of land is being utilized for high density apartment buildings.
Construction of these high spec, industrial themed Townhomes has started with an anticipated completion date of February 2019. Designed by award winning Architects, Swanbury Penglase and with the building work being done by Mossop construction you are guaranteed of a quality finished home.
The Why To Buy :-
Torrens Title
2 Large bedrooms both with ensuites and built in robes
State of the art kitchen with stone bench tops & quality appliances
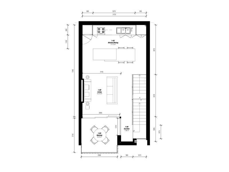
Spacious living/dining with polished Baltic pine flooring
Ducted reverse cycle air conditioning
Separate study area
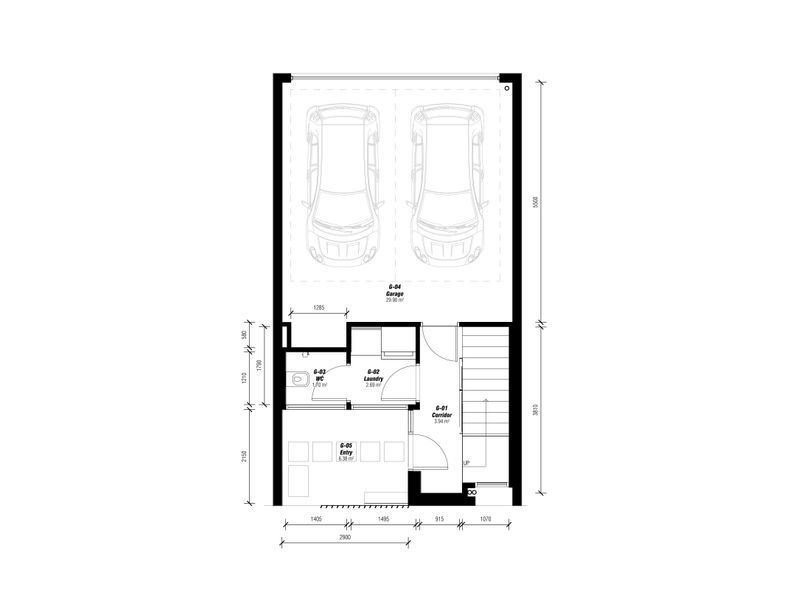
Downstairs laundry and powder room
High quality fixtures and fittings throughout
Alarm system and video intercom access
Data cabling throughout
Magnificent roof terrace with automatic waterproof awning and gas, electricity and water available
2x Private balconies
Private front courtyard
Double side by side garage
These spectacular townhomes will suit young families, busy professionals looking to live and possibly work out of (stcc) or anybody looking to move into the city without compromising their already high living standards.
Investors will be attracted due to full depreciation's on offer as well as high rental returns being achieved.
An exciting and low maintenance lifestyle is guaranteed in the eclectic South West/Central Market precinct. Surrounded by many new funky cafe's, Wine Bars and entertainment venues as well as the iconic Gouger St and Central Markets all on your doorstep.
Great schools are close by with Sturt St Primary school, Adelaide High school &
Pulteney Grammar School all just a short walk away or catch the available public transport.
For any further information including viewing a display of the fit - out please contact, Andrew Downing, The City Specialist on 0404 882 311.
Property Code: 7507
Construction of these high spec, industrial themed Townhomes has started with an anticipated completion date of February 2019. Designed by award winning Architects, Swanbury Penglase and with the building work being done by Mossop construction you are guaranteed of a quality finished home.
The Why To Buy :-
Torrens Title
2 Large bedrooms both with ensuites and built in robes
State of the art kitchen with stone bench tops & quality appliances
Spacious living/dining with polished Baltic pine flooring
Ducted reverse cycle air conditioning
Separate study area
Downstairs laundry and powder room
High quality fixtures and fittings throughout
Alarm system and video intercom access
Data cabling throughout
Magnificent roof terrace with automatic waterproof awning and gas, electricity and water available
2x Private balconies
Private front courtyard
Double side by side garage
These spectacular townhomes will suit young families, busy professionals looking to live and possibly work out of (stcc) or anybody looking to move into the city without compromising their already high living standards.
Investors will be attracted due to full depreciation's on offer as well as high rental returns being achieved.
An exciting and low maintenance lifestyle is guaranteed in the eclectic South West/Central Market precinct. Surrounded by many new funky cafe's, Wine Bars and entertainment venues as well as the iconic Gouger St and Central Markets all on your doorstep.
Great schools are close by with Sturt St Primary school, Adelaide High school &
Pulteney Grammar School all just a short walk away or catch the available public transport.
For any further information including viewing a display of the fit - out please contact, Andrew Downing, The City Specialist on 0404 882 311.
Property Code: 7507

