22 Albert Street, ADELAIDE
Sold By Andrew Downing, The City Specialist!
Funky Warehouse Conversion - You Will Love It!
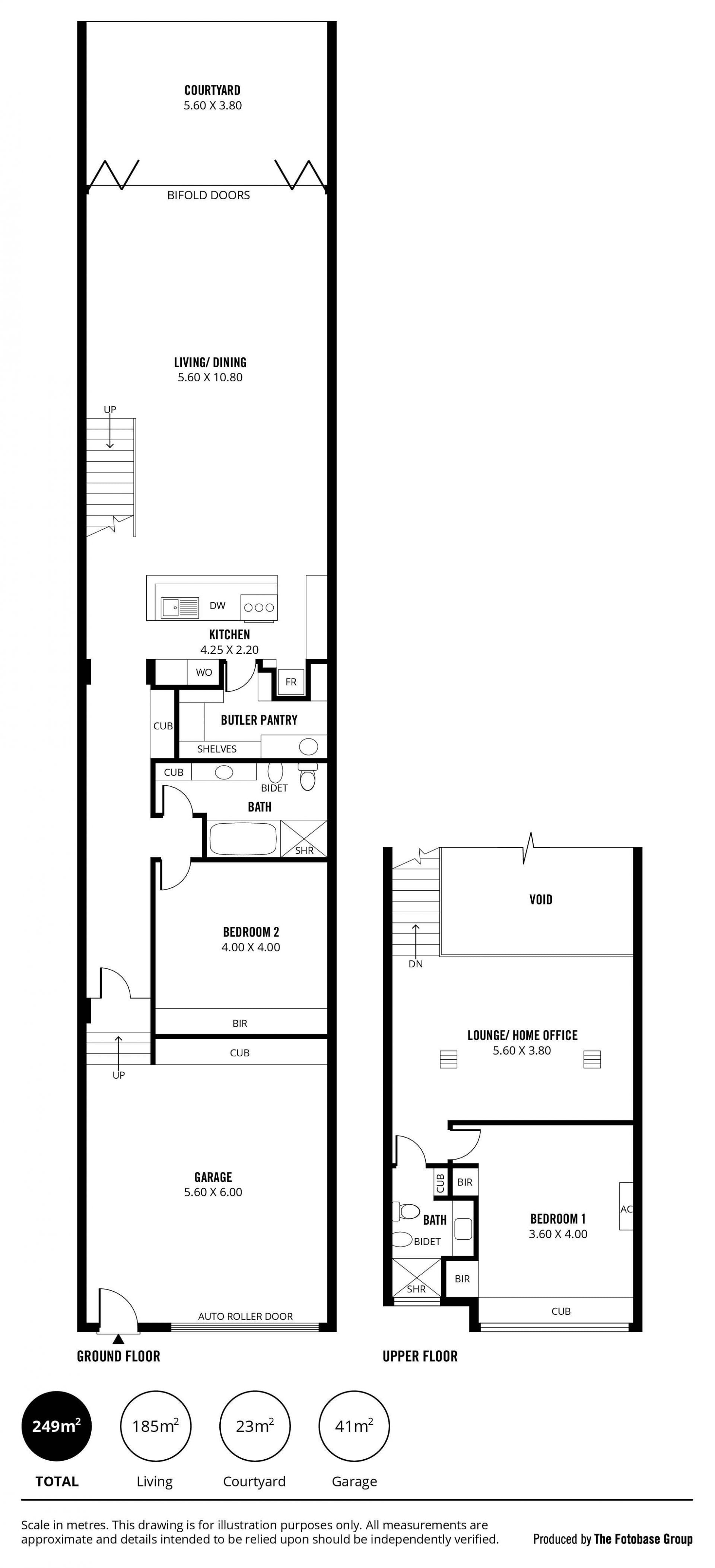
Properties like this in the CBD are rare to say the least and this sensational, Torrens Title warehouse of over 200sqm of living is one out of the box.
Built around 1970 and used predominantly over the next 30 or so years for mechanical repairs and food storage until in 2003 it was converted to a residential property and has been constantly updated ever since.
With stunning Tasmanian Oak flooring, high vaulted ceilings, Industrial style Stainless Steel kitchen and a magnificent North facing rear courtyard with a lovely established vertical garden you have all the ingredients for an exciting and sought after inner city pad.
The why To Buy 🙂
2 King sized bedrooms, both easily serviced with bathrooms & built in robes
Expansive downstairs living & dining opening onto rear courtyard
Trendy Stainless Steel kitchen with butler's pantry and gas cooking
Spacious upstairs living or could be a perfect home office
Ducted evaporative air conditioning as well as a split system in the main bedroom
2 Sparkling bathrooms with Bidet's in both
Private and tranquil rear courtyard with lovely Green outlook, the perfect retreat
Safe and secure with an alarm system
Large double side by side garaging with plenty of additional storage
Approximate land size is 185sqm
This funky Warehouse conversion is perfectly suited to take advantage of the re - generation of this side of the city. With many trendy cafe's, restaurants, Wine bars and entertainment venues opening of recent times you are in position A to take advantage of this sought after urban vibe.
Close walking distance to the iconic Central Markets, Gouger Street, Parklands,
Public transport and the new Royal Adelaide Hospital, Medical Research Centre, and zoned for both of Adelaide's Public High Schools as well as many of the elite Public schools.
For any further information please contact, Andrew Downing, The City Specialist on 0404 882 311.
Properties like this in the CBD are rare to say the least and this sensational, Torrens Title warehouse of over 200sqm of living is one out of the box.
Built around 1970 and used predominantly over the next 30 or so years for mechanical repairs and food storage until in 2003 it was converted to a residential property and has been constantly updated ever since.
With stunning Tasmanian Oak flooring, high vaulted ceilings, Industrial style Stainless Steel kitchen and a magnificent North facing rear courtyard with a lovely established vertical garden you have all the ingredients for an exciting and sought after inner city pad.
The why To Buy 🙂
2 King sized bedrooms, both easily serviced with bathrooms & built in robes
Expansive downstairs living & dining opening onto rear courtyard
Trendy Stainless Steel kitchen with butler's pantry and gas cooking
Spacious upstairs living or could be a perfect home office
Ducted evaporative air conditioning as well as a split system in the main bedroom
2 Sparkling bathrooms with Bidet's in both
Private and tranquil rear courtyard with lovely Green outlook, the perfect retreat
Safe and secure with an alarm system
Large double side by side garaging with plenty of additional storage
Approximate land size is 185sqm
This funky Warehouse conversion is perfectly suited to take advantage of the re - generation of this side of the city. With many trendy cafe's, restaurants, Wine bars and entertainment venues opening of recent times you are in position A to take advantage of this sought after urban vibe.
Close walking distance to the iconic Central Markets, Gouger Street, Parklands,
Public transport and the new Royal Adelaide Hospital, Medical Research Centre, and zoned for both of Adelaide's Public High Schools as well as many of the elite Public schools.
For any further information please contact, Andrew Downing, The City Specialist on 0404 882 311.

