23 Frederick Street, RICHMOND
Luxury Townhouse Living-Four now Sold in this group!
(Five remaining quality townhouses priced from $410,000-Come and take a look these fantastic eye-catching properties)
Richmond is definitely a suburb on the move. Only five minutes from the city, Uni SA and only a very short drive to the airport and beaches. Richmond has all the heart ticks to make it an outstanding investment for either the owner occupier or serious investor.
Architect designed and supervised, quality built, these luxury community title townhouses represent easy care living at its finest. Outside, the development sits easily with the surrounding character homes with face brick external walls. Each property has its own private front and rear yard complete with the luxury of a rear entrance for garaging and extra parking.
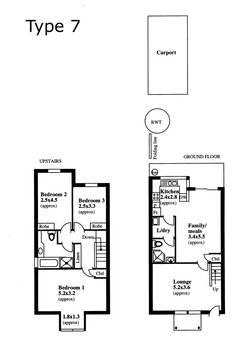
Downstairs the formal lounge opens into a spacious open plan family/dine and sparkling kitchen, downstairs bathroom and separate laundry.
Double sliding doors from the family room open onto the rear outside entertaining and rear entrance.
Upstairs are the three generous bedrooms (all with built-in wardrobes), and the main bathroom ensures privacy and security.
Quality fixtures and fittings and decor throughout and complete with reverse cycle air conditioning and remote controlled roller doors and security system.
If you are looking for an outstanding once only investment opportunity and you would appreciate the chance to be close to the City, call now. (RLA 46284)
Richmond is definitely a suburb on the move. Only five minutes from the city, Uni SA and only a very short drive to the airport and beaches. Richmond has all the heart ticks to make it an outstanding investment for either the owner occupier or serious investor.
Architect designed and supervised, quality built, these luxury community title townhouses represent easy care living at its finest. Outside, the development sits easily with the surrounding character homes with face brick external walls. Each property has its own private front and rear yard complete with the luxury of a rear entrance for garaging and extra parking.
Downstairs the formal lounge opens into a spacious open plan family/dine and sparkling kitchen, downstairs bathroom and separate laundry.
Double sliding doors from the family room open onto the rear outside entertaining and rear entrance.
Upstairs are the three generous bedrooms (all with built-in wardrobes), and the main bathroom ensures privacy and security.
Quality fixtures and fittings and decor throughout and complete with reverse cycle air conditioning and remote controlled roller doors and security system.
If you are looking for an outstanding once only investment opportunity and you would appreciate the chance to be close to the City, call now. (RLA 46284)

