2/31 Henley Beach Road, MILE END
Townhouse living minutes to the City
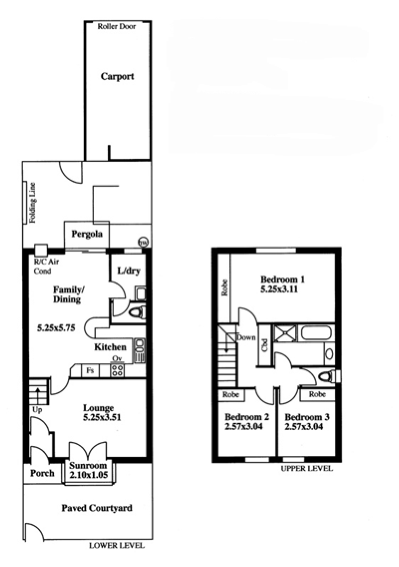
A perfect opportunity to purchase an easy care lifestyle and property minutes to the City. Located just before the Bakewell Underpass in a well maintained group, the property offers formal living room with a lovely sun room and looks onto the front paved courtyard. Kitchen with plenty of cupboard and work space overlooking family area and meals. Separate laundry with downstairs toilet.
Upstairs the three bedrooms all have built-ins and also another separate toilet and main bathroom.
Secure car parking with roller door garage with access to the private yard.
RLA 46284
Upstairs the three bedrooms all have built-ins and also another separate toilet and main bathroom.
Secure car parking with roller door garage with access to the private yard.
RLA 46284

