25 Education Road, Happy Valley
Beautifully presented family home with pool and multiple living spaces!
Please contact Danielle Comer or Rachael Farror for viewing times.
With numerous upgrades and a gorgeous kerbside appeal, you will be sure to put this Happy Valley winner at the very top of your list. Surrounded by local schools, shops, and public transport options plus the recently opened Happy Valley Reservoir - featuring walking/bike trails, kayaking, and fishing, it's a fantastic opportunity that will suit a wide range of buyers including investors, first-home buyers, and the growing family wishing to move into this popular location.
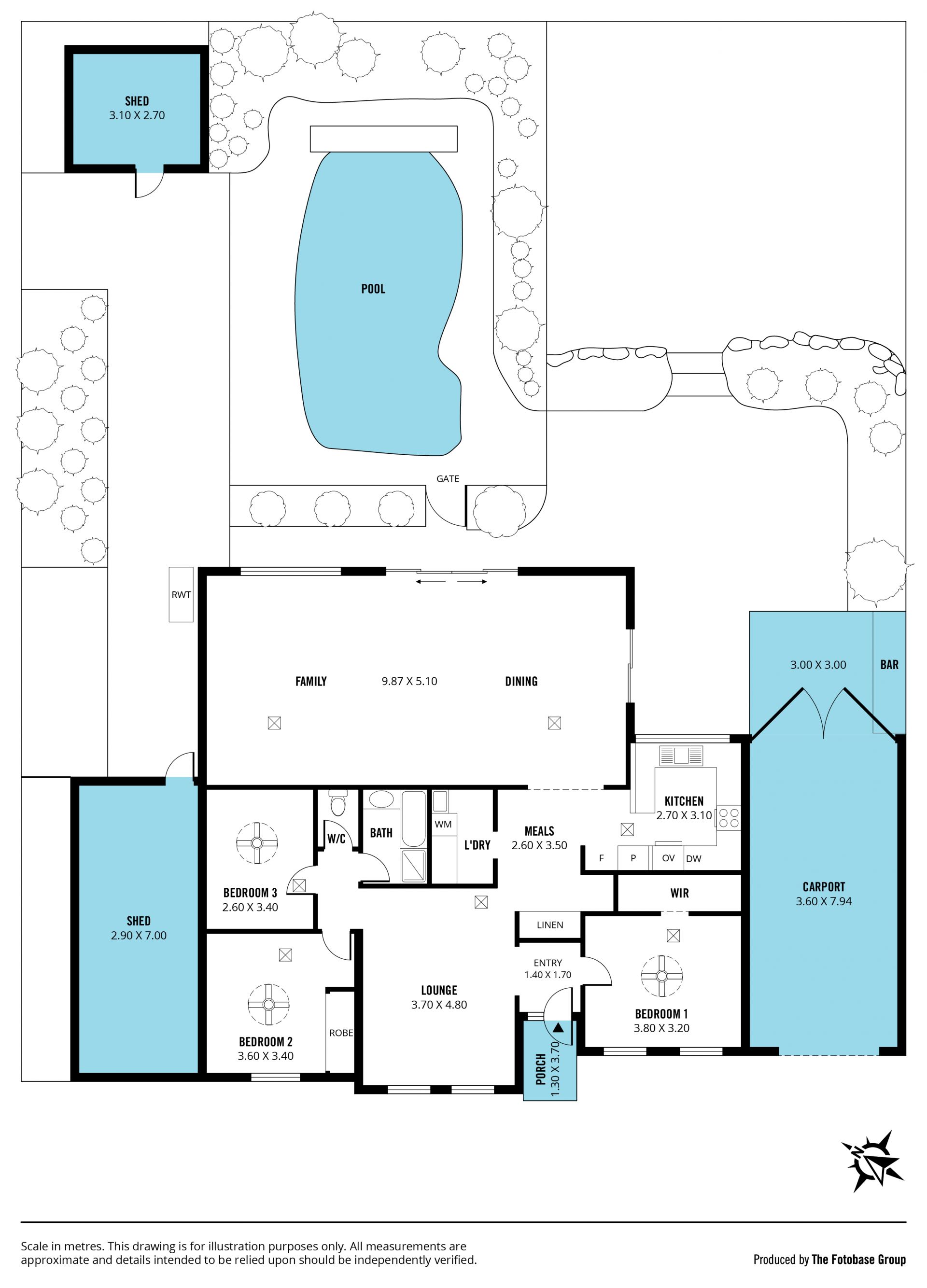
Upon entrance to the home, you are welcomed by a neat entryway that flows past a formal lounge, featuring picture windows showcasing a lovely view through the modern Venetian blinds of the front garden and allowing plenty of natural light to shine through.
The formal lounge transitions seamlessly through to a renovated kitchen positioned overlooking a casual meals, and adjacent to an enormous second living/dine with glass sliding doors providing direct access to the rear yard.
The impressive gourmet kitchen has been beautifully appointed with quality bench tops, and modern stainless steel appliances including an induction cooktop, and dishwasher, while a linen cupboard found here provides valuable extra storage space to the home.
Your choice of three great-sized and beautifully presented bedrooms includes a front-positioned master complete with a walk-in robe, bedroom two with a built-in robe, and bedroom three all featuring ceiling fans, and easy access to the renovated main bathroom with a separate toilet,
Glass sliding doors provide a picturesque view and seamless access to the rear yard where you will find an entertainer's paradise featuring an in-ground swimming pool overlooked by the paved entertaining area. A separate paved section featuring a built-in bar and covered by a skillion roof pergola, makes a fantastic external living area that will be used throughout the seasons.
Opportunities are endless in the spacious and secure backyard with plenty of space on the large split-level lawn area surrounded by neat garden beds for the kids and pets to run around and explore with fabulous privacy. You also have the added bonus here of a good-sized workshop and small tool shed, perfect for storing the pool equipment.
Built to the highest of quality, extras include; a single carport with gated access to the rear plus a second driveway allowing for additional off-street parking or storage of a caravan, ducted evaporative cooling, a gas heater, and gas instantaneous hot water.
Not only are you just a short drive from the fantastic Happy Valley Shopping Centre, but this wonderful location also provides nature and lifestyle opportunities galore, with a multitude of parks and playgrounds close by. You'll need to get in quickly as an opportunity to own a home in one of the South's most popular locations won't last long!
All floorplans, photos, and text are for illustration purposes only and are not intended to be part of any contract. All measurements are approximate and details intended to be relied upon should be independently verified.
Magain Real Estate Happy Valley
RLA 222182
With numerous upgrades and a gorgeous kerbside appeal, you will be sure to put this Happy Valley winner at the very top of your list. Surrounded by local schools, shops, and public transport options plus the recently opened Happy Valley Reservoir - featuring walking/bike trails, kayaking, and fishing, it's a fantastic opportunity that will suit a wide range of buyers including investors, first-home buyers, and the growing family wishing to move into this popular location.
Upon entrance to the home, you are welcomed by a neat entryway that flows past a formal lounge, featuring picture windows showcasing a lovely view through the modern Venetian blinds of the front garden and allowing plenty of natural light to shine through.
The formal lounge transitions seamlessly through to a renovated kitchen positioned overlooking a casual meals, and adjacent to an enormous second living/dine with glass sliding doors providing direct access to the rear yard.
The impressive gourmet kitchen has been beautifully appointed with quality bench tops, and modern stainless steel appliances including an induction cooktop, and dishwasher, while a linen cupboard found here provides valuable extra storage space to the home.
Your choice of three great-sized and beautifully presented bedrooms includes a front-positioned master complete with a walk-in robe, bedroom two with a built-in robe, and bedroom three all featuring ceiling fans, and easy access to the renovated main bathroom with a separate toilet,
Glass sliding doors provide a picturesque view and seamless access to the rear yard where you will find an entertainer's paradise featuring an in-ground swimming pool overlooked by the paved entertaining area. A separate paved section featuring a built-in bar and covered by a skillion roof pergola, makes a fantastic external living area that will be used throughout the seasons.
Opportunities are endless in the spacious and secure backyard with plenty of space on the large split-level lawn area surrounded by neat garden beds for the kids and pets to run around and explore with fabulous privacy. You also have the added bonus here of a good-sized workshop and small tool shed, perfect for storing the pool equipment.
Built to the highest of quality, extras include; a single carport with gated access to the rear plus a second driveway allowing for additional off-street parking or storage of a caravan, ducted evaporative cooling, a gas heater, and gas instantaneous hot water.
Not only are you just a short drive from the fantastic Happy Valley Shopping Centre, but this wonderful location also provides nature and lifestyle opportunities galore, with a multitude of parks and playgrounds close by. You'll need to get in quickly as an opportunity to own a home in one of the South's most popular locations won't last long!
All floorplans, photos, and text are for illustration purposes only and are not intended to be part of any contract. All measurements are approximate and details intended to be relied upon should be independently verified.
Magain Real Estate Happy Valley
RLA 222182

