25 Maldon Avenue, MITCHELL PARK
Have it your way!
Holding many opportunities whether it be for the home buyer, investor or developer, this property would respond well to further upgrading or starting again (subject to the usual council consents).
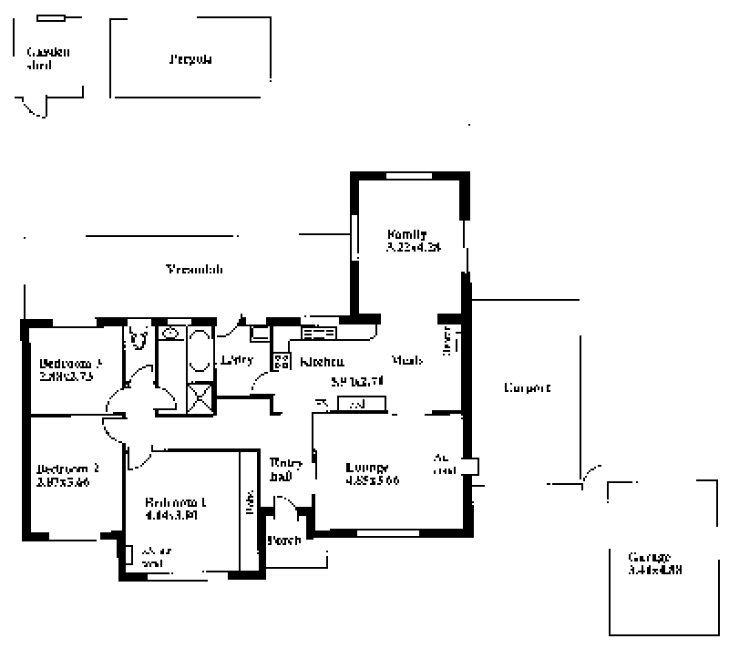
Zoned Residential 16 and with a land size of some 750sqm, the main home comprises of three decent size bedrooms, spacious formal lounge with sliding doors to the kitchen and polished floorboards throughout. Formal dine room, kitchen with gas cooking and looking out on the rear gardens.
Spacious rear yard with entertaining area, lawns and good shedding and in a great location alongside a large park, walking distance to local transport routes and short drive to Westfield Marion.
Call your local Property Consultant Greg Lewis today for further details.
Zoned Residential 16 and with a land size of some 750sqm, the main home comprises of three decent size bedrooms, spacious formal lounge with sliding doors to the kitchen and polished floorboards throughout. Formal dine room, kitchen with gas cooking and looking out on the rear gardens.
Spacious rear yard with entertaining area, lawns and good shedding and in a great location alongside a large park, walking distance to local transport routes and short drive to Westfield Marion.
Call your local Property Consultant Greg Lewis today for further details.

