25a Ballara St, Mile End
Furnished updated character maisonette
Available: 12th February 2026
To apply for this property, you will first need to register and attend an open inspection. Click 'Book an Inspection Time' (at the bottom) to see currently scheduled open inspection times. Please register for any open inspections you will be attending or register your interest so that we can advise of new times/ unexpected changes. Any applications submitted without viewing the property will not be processed.
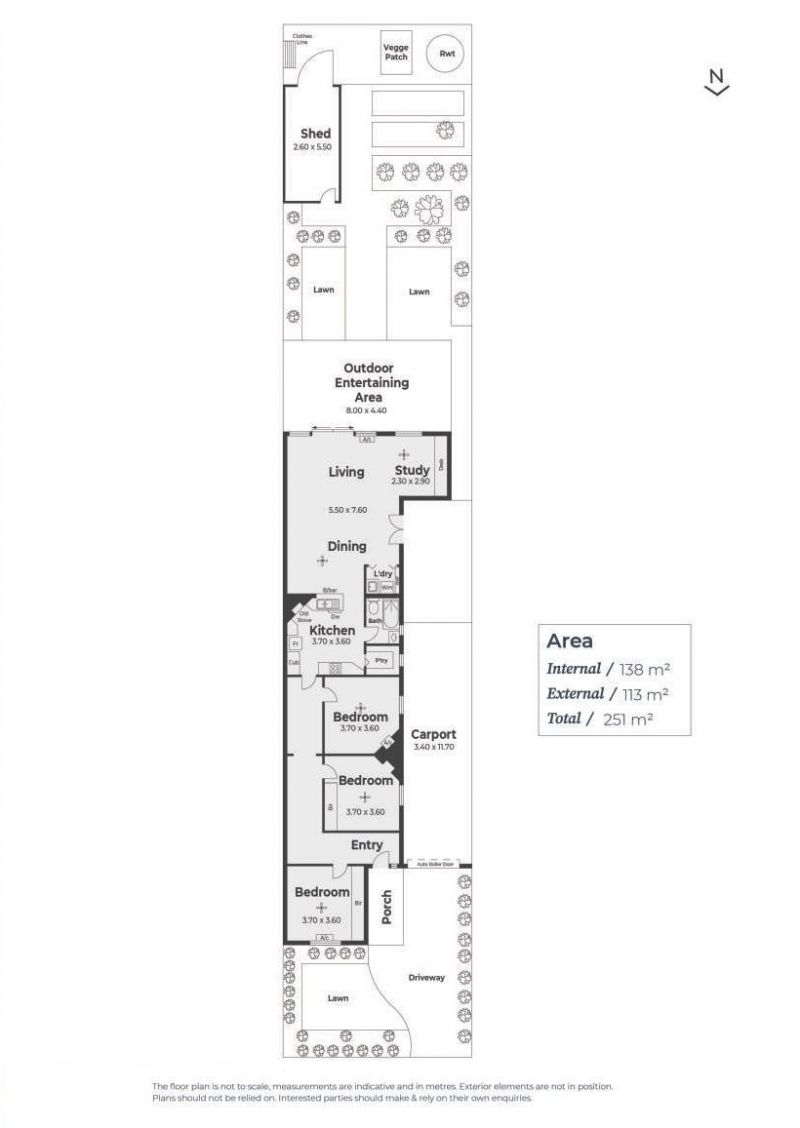
Located in city-fringe Mile End, this gorgeous stone fronted maisonette offers many character features in this popular Inner West community located within Adelaide High School and Adelaide Botanic High School zones as well as within walking distance to Adelaide CBD and an array of local shops, cafes and restaurants. Public transport options include nearby bus stops with the Mile End train stop also nearby.
Features include;
- Three spacious bedrooms (two with built-in robes)
- Updated kitchen with gas cooktop, dishwasher and ample bench space and storage
- Polished timber floors
- Expansive open plan living, dining and study space
- Three split system air conditioners for year-round comfort
- Ceiling fans
- European laundry
- Neutral bathroom with bathtub
- Rear access to private laneway
- Secure carport with space for three vehicles and internal access
- Rainwater tank
- 8 x 1.5kW Solar panels
- Sliding glass doors to the undercover entertaining area
- Double length carport with auto door & additional off street park for one car.
PLEASE NOTE
> No smoking at the property.
> Exclusions: Fireplaces are ornamental, Puratap, rear flood lights and old brick shed are not included in the lease
> Duration of Tenancy: 12 months preferred
> The landlord has advertised, intends to advertise or has entered into an existing sales agency agreement for the sale of the premises: NO
> Rates And Charges:
Water: Tenant
Electricity: Tenant
Gas: Tenant
APPLYING FOR THIS PROPERTY
Please note, applications will not be processed until:
> the property has been viewed in person
> photo ID has been provided
> proof of Income (pay slip, bank statement, Centrelink statement) has been provided
MOVING HOUSE?
> visit the website below for Magain Utilities to help save you with connection fees
> www.bit.ly/MagainUtilities
Disclaimer:
All information contained in this advertisement has been gathered from sources we believe to be accurate, however, we cannot guarantee or give any warranty about the information provided and we accept no liability for any errors or omissions. Interested parties should seek independent advice before making any leasing decisions. RLA1503
To apply for this property, you will first need to register and attend an open inspection. Click 'Book an Inspection Time' (at the bottom) to see currently scheduled open inspection times. Please register for any open inspections you will be attending or register your interest so that we can advise of new times/ unexpected changes. Any applications submitted without viewing the property will not be processed.
Located in city-fringe Mile End, this gorgeous stone fronted maisonette offers many character features in this popular Inner West community located within Adelaide High School and Adelaide Botanic High School zones as well as within walking distance to Adelaide CBD and an array of local shops, cafes and restaurants. Public transport options include nearby bus stops with the Mile End train stop also nearby.
Features include;
- Three spacious bedrooms (two with built-in robes)
- Updated kitchen with gas cooktop, dishwasher and ample bench space and storage
- Polished timber floors
- Expansive open plan living, dining and study space
- Three split system air conditioners for year-round comfort
- Ceiling fans
- European laundry
- Neutral bathroom with bathtub
- Rear access to private laneway
- Secure carport with space for three vehicles and internal access
- Rainwater tank
- 8 x 1.5kW Solar panels
- Sliding glass doors to the undercover entertaining area
- Double length carport with auto door & additional off street park for one car.
PLEASE NOTE
> No smoking at the property.
> Exclusions: Fireplaces are ornamental, Puratap, rear flood lights and old brick shed are not included in the lease
> Duration of Tenancy: 12 months preferred
> The landlord has advertised, intends to advertise or has entered into an existing sales agency agreement for the sale of the premises: NO
> Rates And Charges:
Water: Tenant
Electricity: Tenant
Gas: Tenant
APPLYING FOR THIS PROPERTY
Please note, applications will not be processed until:
> the property has been viewed in person
> photo ID has been provided
> proof of Income (pay slip, bank statement, Centrelink statement) has been provided
MOVING HOUSE?
> visit the website below for Magain Utilities to help save you with connection fees
> www.bit.ly/MagainUtilities
Disclaimer:
All information contained in this advertisement has been gathered from sources we believe to be accurate, however, we cannot guarantee or give any warranty about the information provided and we accept no liability for any errors or omissions. Interested parties should seek independent advice before making any leasing decisions. RLA1503

