26 Albert Street, ADELAIDE
Sold By Andrew Downing, The City Specialist!
Gorgeous Renovated Cottage In The Vibrant West End!
This beautiful, Bluestone fronted, character home has been lovingly restored over the last 11 years and is a perfect blend of modern contemporary living with classic heritage features creating an amazing inner city residence.
Perfectly positioned at the end of a quiet no through street with permit parks right out the front, you will love living in this inclusive West End community just as the current family has, view link for more information.
The Why To Buy : - )
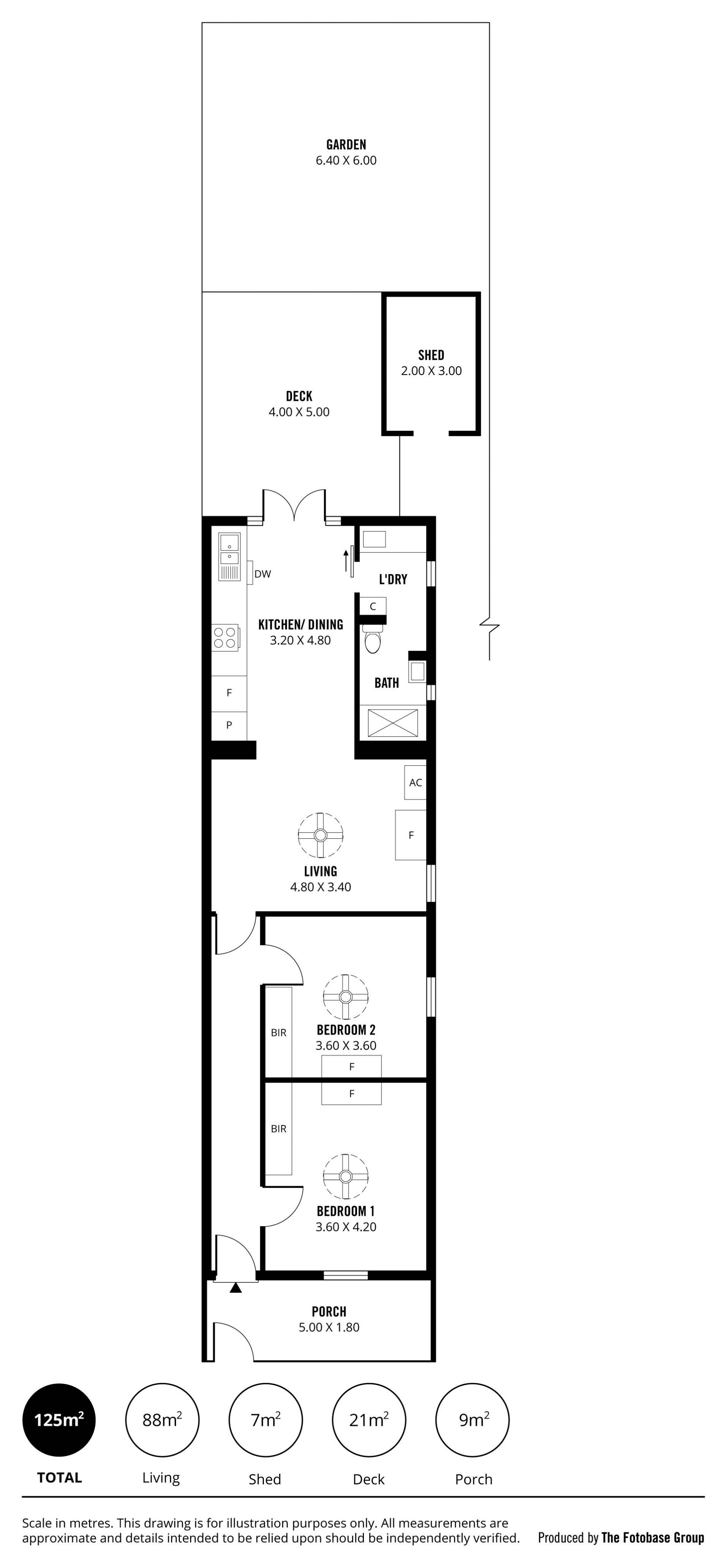
* 2 Large bedrooms both with large built in robes and ceiling fans
* Separate living room with split system air conditioning
* Stunning modern kitchen with gas cooking and stainless appliances
* Sparkling new bathroom & separate laundry
* Lovely heritage features including polished wooden floorboards, decorative
fireplaces and archways, lofty ceilings and high skirting boards
* Good size allotment of approximately 184sqm
* Large entertainment deck and rear yard with garden storage shed
* Up to 2 permit parks out the front of the house, stcc
Recent improvements that might not be apparent include, New solid floors & joists, sub floor ventilation ( salt damp preventative), new roof, preventative termite treatment, gas instantaneous hot water service, painting inside and out etc!
This beautiful home is perfectly suited to take advantage of the re - generation of this side of the city. With many trendy cafe's, restaurants, Wine bars and entertainment venues opening of recent times you are in position A to take advantage of this sought after urban vibe.
Close walking distance to the iconic Central Markets, Gouger Street, Parklands,
Public transport and the new Royal Adelaide Hospital, Medical Research Centre, and zoned for both of Adelaide's Public High Schools as well as many of the elite Public schools.
For any further information please contact, Andrew Downing, The City Specialist on 0404 882 311.
This beautiful, Bluestone fronted, character home has been lovingly restored over the last 11 years and is a perfect blend of modern contemporary living with classic heritage features creating an amazing inner city residence.
Perfectly positioned at the end of a quiet no through street with permit parks right out the front, you will love living in this inclusive West End community just as the current family has, view link for more information.
The Why To Buy : - )
* 2 Large bedrooms both with large built in robes and ceiling fans
* Separate living room with split system air conditioning
* Stunning modern kitchen with gas cooking and stainless appliances
* Sparkling new bathroom & separate laundry
* Lovely heritage features including polished wooden floorboards, decorative
fireplaces and archways, lofty ceilings and high skirting boards
* Good size allotment of approximately 184sqm
* Large entertainment deck and rear yard with garden storage shed
* Up to 2 permit parks out the front of the house, stcc
Recent improvements that might not be apparent include, New solid floors & joists, sub floor ventilation ( salt damp preventative), new roof, preventative termite treatment, gas instantaneous hot water service, painting inside and out etc!
This beautiful home is perfectly suited to take advantage of the re - generation of this side of the city. With many trendy cafe's, restaurants, Wine bars and entertainment venues opening of recent times you are in position A to take advantage of this sought after urban vibe.
Close walking distance to the iconic Central Markets, Gouger Street, Parklands,
Public transport and the new Royal Adelaide Hospital, Medical Research Centre, and zoned for both of Adelaide's Public High Schools as well as many of the elite Public schools.
For any further information please contact, Andrew Downing, The City Specialist on 0404 882 311.

