27 Georgiana Street, FLAGSTAFF HILL
Four Bedrooms and Inground Pool
A beautifully maintained solid brick home in prime location, close to shopping, school & transport.
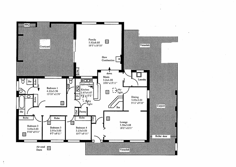
It offers a formal lounge and separate formal dine. The large kitchen with dishwasher and pantry adjoins the family/casual meals area with bar and flows into the large billiard room opening out to private courtyard and bbq area.
There are four bedrooms with built-ins and ensuite to main. Other features include ducted evaporative cooling, gas and slow combustion heating, inground pool, private landscaped gardens and double length lock up carport plus toolshed. Long settlement preferred.
It offers a formal lounge and separate formal dine. The large kitchen with dishwasher and pantry adjoins the family/casual meals area with bar and flows into the large billiard room opening out to private courtyard and bbq area.
There are four bedrooms with built-ins and ensuite to main. Other features include ducted evaporative cooling, gas and slow combustion heating, inground pool, private landscaped gardens and double length lock up carport plus toolshed. Long settlement preferred.

