28 James Street, ADELAIDE
Stunning 3 Bedroom Torrens Title Townhouse!
This immaculately maintained home is a rare find in Adelaides desirable East-End! Walking distance to vibrant Hutt Street and the array of award-winning cafes and restaurants, East Parkands, excellent shopping, fantastic schools, Medical facilities (Parkway, Calvery Wakefield & St Andrews Hospitals) plus so much more! City living at its best!
Located in a private and quiet leafy cul-de-sac, this beautiful townhouse offers the tranquilly of a suburbs home in a convenient city setting the best of both worlds!
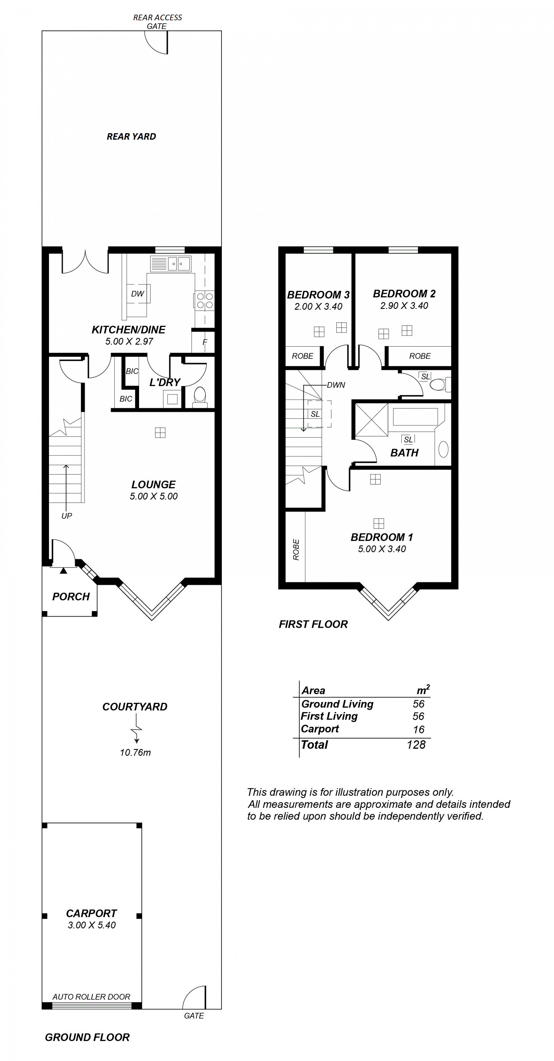
Comprising of two generous levels of living, downstairs offers a spacious living area leading through to the separate dining area and well-appointed kitchen with ample storage and gas cooking. Downstairs is serviced by a convenient second w/c and separate laundry. Head outside to the well-maintained rear yard with direct access out to Albert Lane.
Upstairs features 3 light-filled bedrooms, all with BIRs and conveniently serviced by the main bathroom and separate w/c.
Further features include:
- Generous front courtyard with secure off-street parking
- Well-maintained rear yard with manicured gardens and lawn plus valuable rear access
- Ducted evaporative air conditioning and ducted gas heating
- Lovely street appeal with architectural feature windows
- Large central skylight
- Polished floorboards throughout lower level
- Security system
- Secure carport with automatic roller door
- Under stair storage
The perfect home for families, first home buyers, city professionals and investors alike! A fantastic opportunity not to be missed!
**All information provided has been obtained from sources we believe to be accurate, however, we cannot guarantee the information is accurate and we accept no liability for any errors or omissions (including but not limited to a property's land size, floor plans and size, building age and condition) Interested parties should make their own enquiries and obtain their own legal advice. **
Property Code: 7909
Located in a private and quiet leafy cul-de-sac, this beautiful townhouse offers the tranquilly of a suburbs home in a convenient city setting the best of both worlds!
Comprising of two generous levels of living, downstairs offers a spacious living area leading through to the separate dining area and well-appointed kitchen with ample storage and gas cooking. Downstairs is serviced by a convenient second w/c and separate laundry. Head outside to the well-maintained rear yard with direct access out to Albert Lane.
Upstairs features 3 light-filled bedrooms, all with BIRs and conveniently serviced by the main bathroom and separate w/c.
Further features include:
- Generous front courtyard with secure off-street parking
- Well-maintained rear yard with manicured gardens and lawn plus valuable rear access
- Ducted evaporative air conditioning and ducted gas heating
- Lovely street appeal with architectural feature windows
- Large central skylight
- Polished floorboards throughout lower level
- Security system
- Secure carport with automatic roller door
- Under stair storage
The perfect home for families, first home buyers, city professionals and investors alike! A fantastic opportunity not to be missed!
**All information provided has been obtained from sources we believe to be accurate, however, we cannot guarantee the information is accurate and we accept no liability for any errors or omissions (including but not limited to a property's land size, floor plans and size, building age and condition) Interested parties should make their own enquiries and obtain their own legal advice. **
Property Code: 7909

