29 Curlew Street, SHEIDOW PARK
one for the growing family
This is a big home with some features that will make your life very easy!
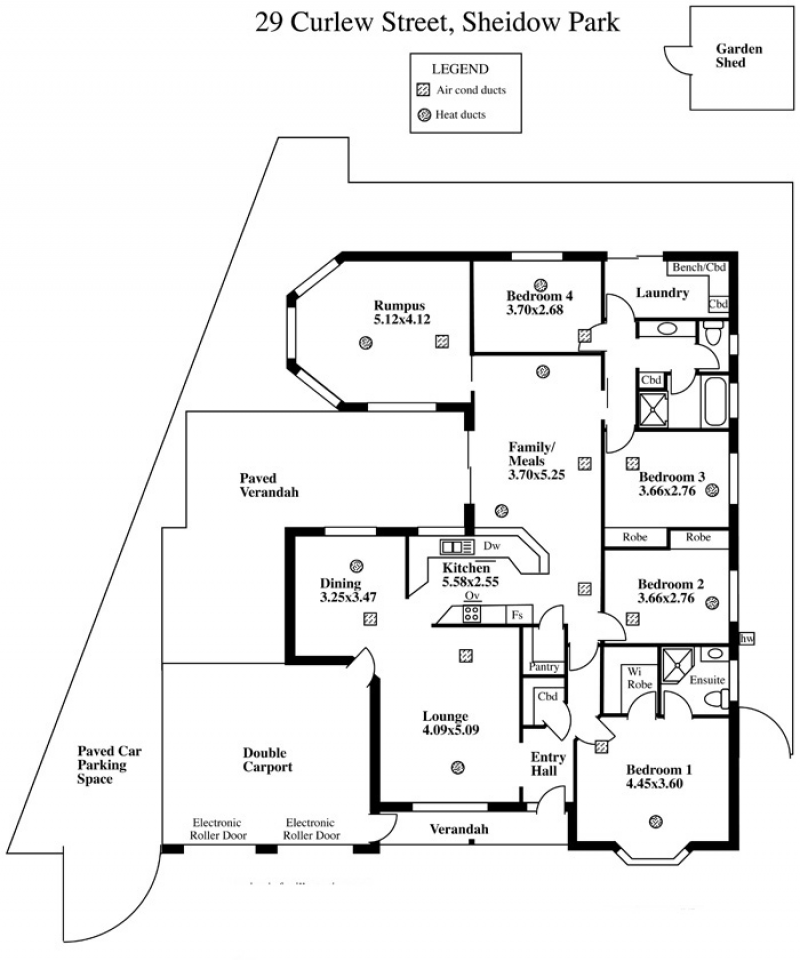
Popular Sheidow Park continually a favourite with the families after a low care lifestyle and large living areas and this one will fit the bill quite nicely. On the high side of the road and a one owner home, this 2004 Fairmont built home has four bedrooms. Large master complete with ensuite bathroom and walk-in robe and bedrooms 2 & 3 also with robes. The living areas are top of the features list with a formal living room, formal dine, family/meals area and purpose built theatre/entertaining/rumpus area just perfect for the big TV and entertainment unit or pool table.
Nice kitchen overlooking the informal meals with dishwasher, lots of cupboard and work space. Main bathroom, good size separate laundry with built-in cupboards. You also have ducted evaporative cooling and ducted gas heating for year round comfort and security system for piece of mind.
Externally there is a double auto roller door and additional space for secure parking for a trailer or pop top caravan. Safe access to the house also with side door access. Private undercover entertaining area and paved side and rear walkways and small lawned area and toolshed.
Just perfect for the family looking to grow and be in a popular suburb.
Popular Sheidow Park continually a favourite with the families after a low care lifestyle and large living areas and this one will fit the bill quite nicely. On the high side of the road and a one owner home, this 2004 Fairmont built home has four bedrooms. Large master complete with ensuite bathroom and walk-in robe and bedrooms 2 & 3 also with robes. The living areas are top of the features list with a formal living room, formal dine, family/meals area and purpose built theatre/entertaining/rumpus area just perfect for the big TV and entertainment unit or pool table.
Nice kitchen overlooking the informal meals with dishwasher, lots of cupboard and work space. Main bathroom, good size separate laundry with built-in cupboards. You also have ducted evaporative cooling and ducted gas heating for year round comfort and security system for piece of mind.
Externally there is a double auto roller door and additional space for secure parking for a trailer or pop top caravan. Safe access to the house also with side door access. Private undercover entertaining area and paved side and rear walkways and small lawned area and toolshed.
Just perfect for the family looking to grow and be in a popular suburb.

