3 Parkwood Grove, MITCHELL PARK
Ripe for Renovation or Development
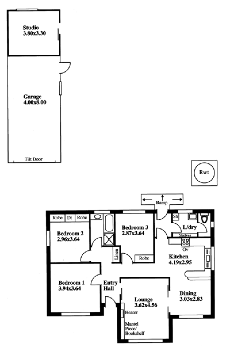
This 3 bedroom home of original condition is sited on a large allotment over 740m2 with a 17.3M frontage and zoned Policy Area 16 in the City of Marion.Investigate your development opportunities subject to standard consents or renovate and profit in this good location surrounded by other quality homes.The solid brick home features a good sized kitchen and meals area a formal lounge and 3 spacious bedrooms. Externally there is an iron garage with a pit and an adjacent utility room, lovely big block with many fruit trees and room for the vegy patch.A great piece of land in a top location, for further details and inspection times contact your Local Mitchell Park Sales Consultants (RLA 46284).

