3 Radiata Place, ABERFOYLE PARK
Classic Colonial in Magic Setting
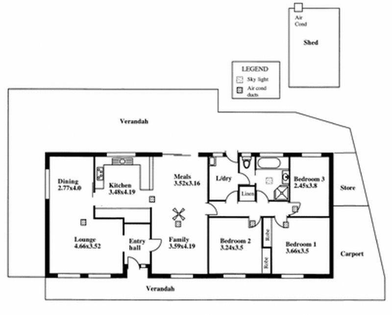
If you are looking for somewhere to raise the family, this home is the one for you! Located on a large, corner block at the end of a quiet court in Woodlea Estate, it is opposite a leafy, creek setting and only a short stroll to the local tennis courts. Offering timeless decor and quality fixture and fittings, formal lounge and dine with 9ft ceilings, timber kitchen overlooking the meals area and family room with slate floors. The ducted evaporative air cond and gas heating will keep you in comfort all year round.There are three bedrooms, with the added bonus of a detached teenage retreat ideal for that growing family that need their own space.Full length paved, undercover pergola for entertaining and lovely gardens complete the backyard that also has side access for those with a caravan/boat or who just require more off street parking.All this and much more, this is one of those sought after character homes, you just cant afford to miss.

