101 Briar Grove, Belair
Title issued - A Prime Hillside Opportunity With Views Set to Unfold
For inspections of the land, we ask that you please contact us prior, so that we can escort you around.
Contact Karen Heuer for further details.
An exceptional opportunity awaits with this rare and valuable offering of 910m2 (approx.), northwest facing block of land, positioned on the elevated side of the road, with potential for views. The title has now been issued on this generous allotment, for a Torrens Title single-storey dwelling (subject to council approval). The flat surface of the tennis court offers the ideal site to create your perfect home. Don't miss your opportunity to design and build your dream home (stcc)!
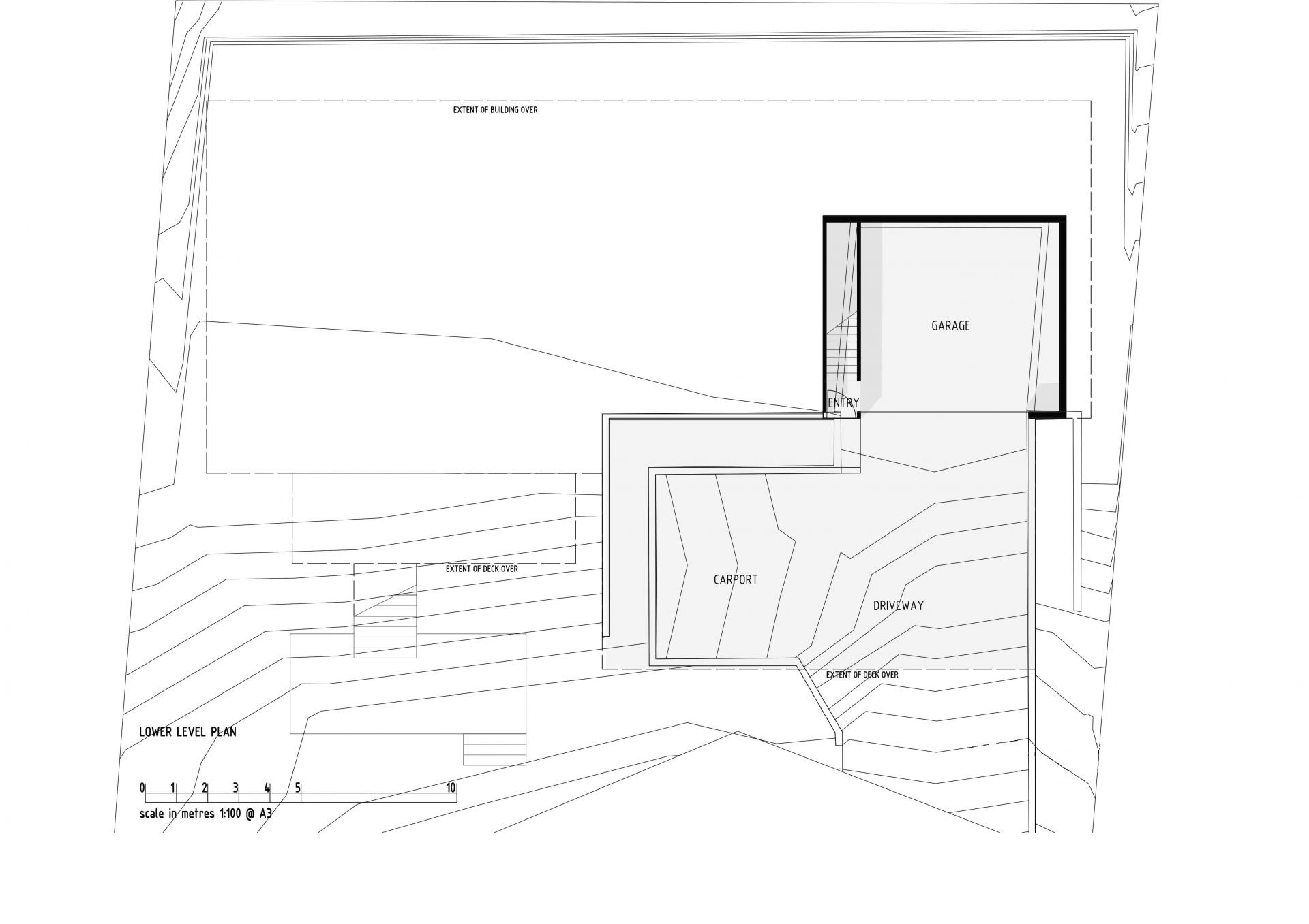
The illustrations show the fantastic potential you have to build a truly remarkable home with views to match from your living and entertaining areas both inside and out. Undercroft garage and off street parking as example are displayed.
Located in the highly desirable, tightly held, family friendly suburb of Belair, this area is known for its beautiful native flora and fauna and proximity to Belair National Park. Spend quality time with loved ones exploring the many walking trails that lead to nearby foothill suburbs such as Mitcham, Torrens Park, Lynton, Panorama and Pasadena.
It is conveniently located just 300m from the prestigious St John's Grammar School Secondary Campus and has bus transport on your doorstep. The city is a short drive away and the renowned wineries of McLaren Vale are also within reach.
Indulge in the local lifestyle, by grabbing a coffee from the Sheoak Cafe, enjoy meals from the Mumbai Indian restaurant or Belair Pizzeria and some delicious treats from the famous Banana Boogie Bakery.
You'll also be close to essential amenities, including the Belair Medical and Dental services, chemist, post office and hairdresser. The nearby Blackwood precinct is close by, offering a variety of supermarkets, retail shops and services, providing everything you need.
-Zoned Hills Neighbourhood to the City Of Mitcham
-Land size of 910sqm (approx.)
-Torrens Title
An unmissable opportunity awaits to build a brand new home (stcc) and reap the benefits of living in this superb location!
*Included Architectural Concept drawings and renders. All copyrights belong to Architecture That*
All site plans, photos and text are for illustration purposes only and are not intended to be part of any contract. All measurements are approximate and details intended to be relied upon should be independently verified
RLA 222182
Contact Karen Heuer for further details.
An exceptional opportunity awaits with this rare and valuable offering of 910m2 (approx.), northwest facing block of land, positioned on the elevated side of the road, with potential for views. The title has now been issued on this generous allotment, for a Torrens Title single-storey dwelling (subject to council approval). The flat surface of the tennis court offers the ideal site to create your perfect home. Don't miss your opportunity to design and build your dream home (stcc)!
The illustrations show the fantastic potential you have to build a truly remarkable home with views to match from your living and entertaining areas both inside and out. Undercroft garage and off street parking as example are displayed.
Located in the highly desirable, tightly held, family friendly suburb of Belair, this area is known for its beautiful native flora and fauna and proximity to Belair National Park. Spend quality time with loved ones exploring the many walking trails that lead to nearby foothill suburbs such as Mitcham, Torrens Park, Lynton, Panorama and Pasadena.
It is conveniently located just 300m from the prestigious St John's Grammar School Secondary Campus and has bus transport on your doorstep. The city is a short drive away and the renowned wineries of McLaren Vale are also within reach.
Indulge in the local lifestyle, by grabbing a coffee from the Sheoak Cafe, enjoy meals from the Mumbai Indian restaurant or Belair Pizzeria and some delicious treats from the famous Banana Boogie Bakery.
You'll also be close to essential amenities, including the Belair Medical and Dental services, chemist, post office and hairdresser. The nearby Blackwood precinct is close by, offering a variety of supermarkets, retail shops and services, providing everything you need.
-Zoned Hills Neighbourhood to the City Of Mitcham
-Land size of 910sqm (approx.)
-Torrens Title
An unmissable opportunity awaits to build a brand new home (stcc) and reap the benefits of living in this superb location!
*Included Architectural Concept drawings and renders. All copyrights belong to Architecture That*
All site plans, photos and text are for illustration purposes only and are not intended to be part of any contract. All measurements are approximate and details intended to be relied upon should be independently verified
RLA 222182

