30 Elgin Way, FLAGSTAFF HILL
Outstanding views to sea and Mount Lofty
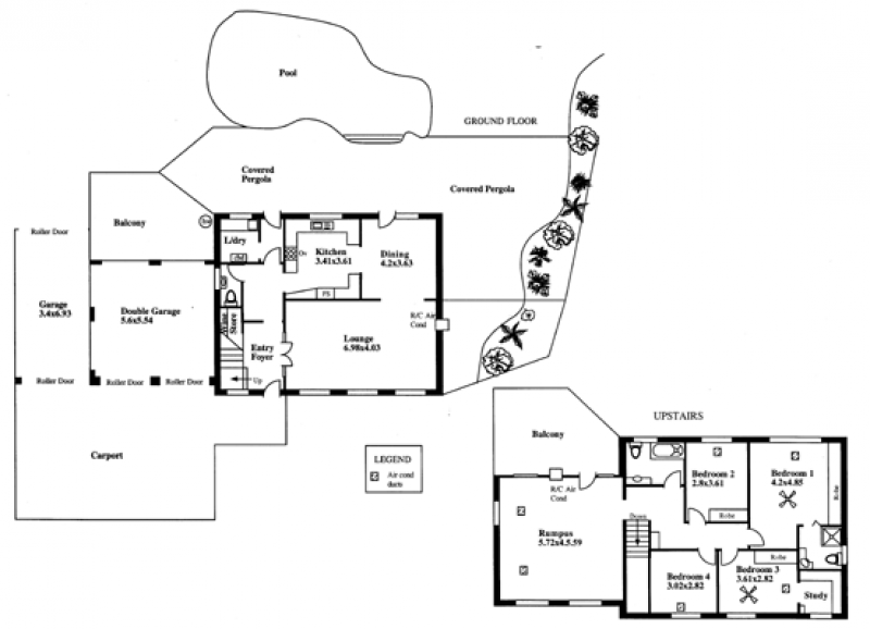
This superbly renovated solid brick 2 storey home is sure to impress the most fastidious purchaser who requires a large home for the growing family.
The downstairs section offers stunning formal lounge, separate formal dine, new kitchen with ample cupboards and dishwasher, 3rd w.c and laundry.
Upstairs are four bedrooms (3 with robes), new main bathroom and ensuite plus a large family room which opens to timber deck with stunning views to the ocean and Mount Lofty.
Other features include timber flooring, quality fixtures, ducted reverse cycle air conditioning, triple garaging and triple carport, in ground pool and delightful undercover entertaining area surrounded by landscaped gardens.
The downstairs section offers stunning formal lounge, separate formal dine, new kitchen with ample cupboards and dishwasher, 3rd w.c and laundry.
Upstairs are four bedrooms (3 with robes), new main bathroom and ensuite plus a large family room which opens to timber deck with stunning views to the ocean and Mount Lofty.
Other features include timber flooring, quality fixtures, ducted reverse cycle air conditioning, triple garaging and triple carport, in ground pool and delightful undercover entertaining area surrounded by landscaped gardens.

