32 Salisbury Avenue, MORPHETT VALE
Ideal starter!
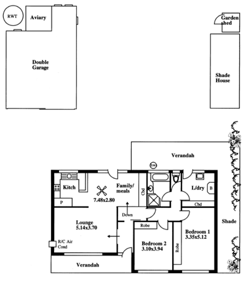
Sited in excellent quiet location yet close to transport and school, this beautifully maintained privately built solid brick home represents outstanding value.
The large formal air conditioned lounge leads into a good size family/meals area and kitchen with new stove.
There are 2 double bedrooms with built-ins, large laundry, separate w.c and bathroom.
Double iron garage, private gardens with fruit trees and fernery.
The large formal air conditioned lounge leads into a good size family/meals area and kitchen with new stove.
There are 2 double bedrooms with built-ins, large laundry, separate w.c and bathroom.
Double iron garage, private gardens with fruit trees and fernery.

