3/33 Henley Beach Road, MILE END
Minutes to CBD-How convenient can you get!
Located just before the Bakewell Underpass, this 3 bedroom community title townhouse is an ideal opportunity for the astute investor or home buyer who need to be near the City for work or easy letting to students for UniSA.
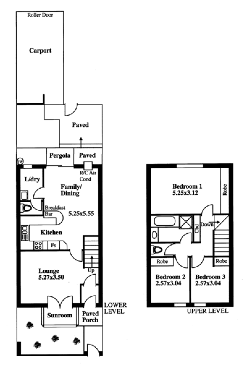
Freshly updated with new carpets both upstairs and downstairs and freshly painted, all you have to do is move in. Downstairs is the spacious formal living room and northerly facing sunroom. Then good size kitchen/meals area with access to the separate laundry and 2nd downstairs toilet. Sliding door to the rear lock up, undercover single carport and additional carspace and small paved & gravelled courtyard with clothesline.
On the first floor are the three bedrooms (all with built-ins), main bathroom and separate toilet and linen press.
The private rear access to the carport makes parking easy away from Henley Beach Rd and the property is within very short walking distance to the bus stops to the City and the Beach and local shops.
Freshly updated with new carpets both upstairs and downstairs and freshly painted, all you have to do is move in. Downstairs is the spacious formal living room and northerly facing sunroom. Then good size kitchen/meals area with access to the separate laundry and 2nd downstairs toilet. Sliding door to the rear lock up, undercover single carport and additional carspace and small paved & gravelled courtyard with clothesline.
On the first floor are the three bedrooms (all with built-ins), main bathroom and separate toilet and linen press.
The private rear access to the carport makes parking easy away from Henley Beach Rd and the property is within very short walking distance to the bus stops to the City and the Beach and local shops.

