3/34 Adelaide Terrace, ASCOT PARK
Private, Peaceful and Perfect - Inspection this weekend !
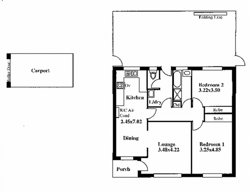
This very large two bedroom home unit is in a small group, beautifully presented throughout and offering large comfortable lounge area, superbly appointed kitchen and lovely spacious dining area.With own backyard, own parking and reverse cycle airconditioning for year round comfort, the space of this unit is more like a small home and the quality of appointments will appeal to the most fastidious of buyers and both bedrooms have extensive built in robes.Will suit the owner occupier couple looking for plenty of comforts, privacy and convenience and all within easy reach of bus and rail transport, with substantial local shopping only a few minutes away.Centrally positioned approx 7km to town, nearby facilities of Marion, Flinders and Glenelg are all within a short 10 minute drive.For more information on the first inspection details, please call Greg Lewis to obtain further information on 8277 1777 and 0419 810 180 or Rick Connock on 0403 225 666.

