35 Sir James Hardy Way, WOODCROFT
Attractive First Home
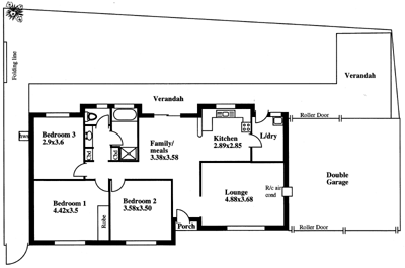
A perfect start if you are looking to purchase your first home or investment property. Situated close to all amenities and featuring lounge with new carpet and heating and cooling for year round comfort. Neat bathroom, kitchen with meals area, three bedrooms, low maintenance garden and cute pitched pergola entertaining area. Double size garage with single rollerdoor ideal for storage or secure parking for your cars. Priced to sell this attractive and affordable home is a must to view.

