376 States Road, MORPHETT VALE
Perfect for the growing family.
Sitting in a great part of Morphett Vale, conveniently located across the road from Wirreanda High School and walking distance to public transport and local shops, this property will be perfect for your future needs.
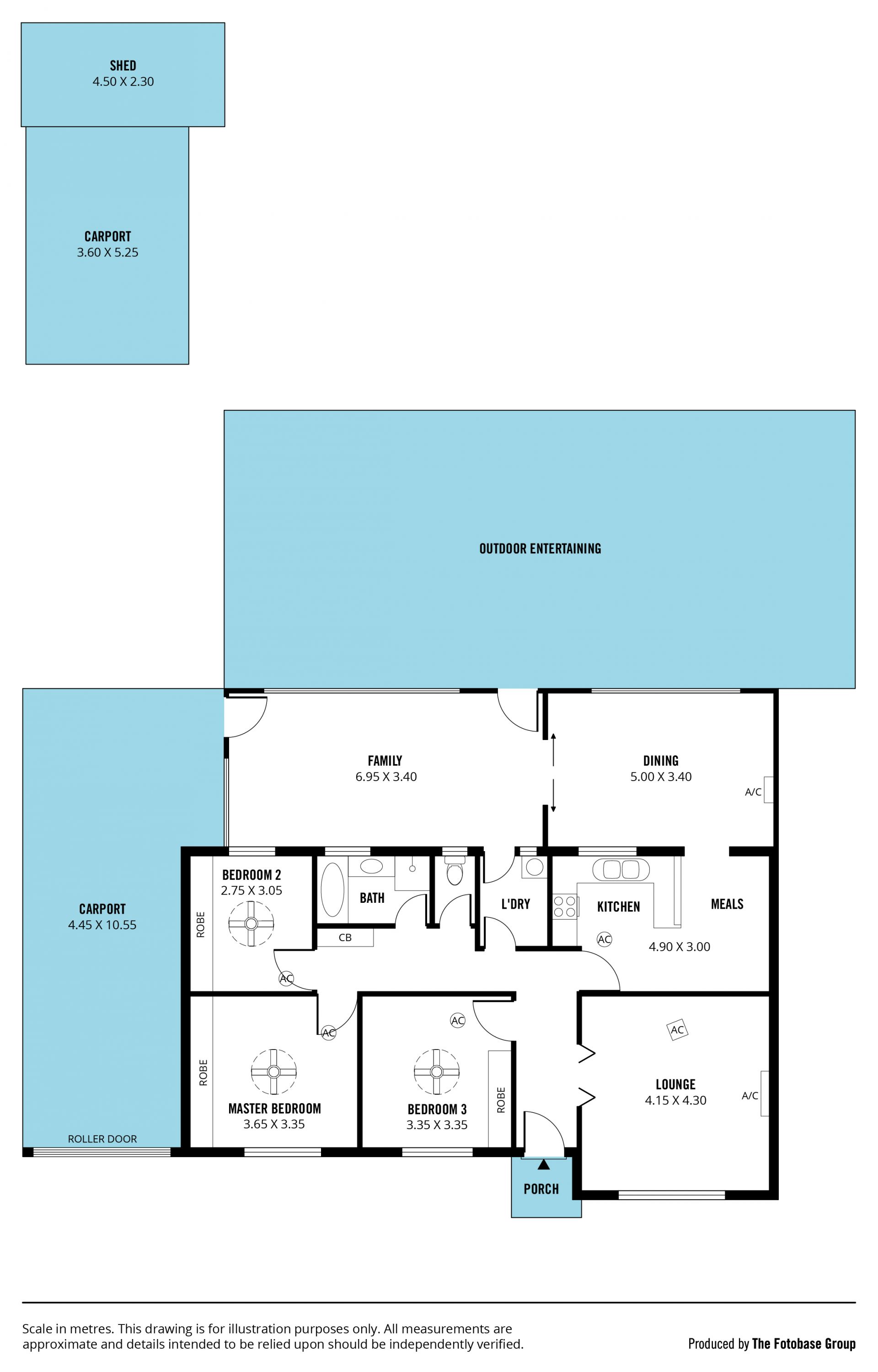
This fabulous three bedroom home boasts two living areas, plus a large games/rumpus room and a huge all weather outdoor entertaining area. You will also love the undercover parking for 2-3 vehicles. With its great floor plan it's easy to stamp your style on this one!
Additional features include:
- Zoned Air conditioning throughout, all bedrooms with fans.
- Brand new 20 panel solar system
- Roller shutters
- Neutral d?cor with loads of natural light.
- Built in robes to all bedrooms, plus linen press.
- Semi open plan kitchen/family/dining areas.
- Handy circular driveway with dual crossovers.
- Drive through under cover carport for 2-3 vehicles.
- Wilfred Taylor Reserve with playground, walking trails, bike tracks and more.
- Public transport, shopping centres and community sports are close by.
- Walking distance to local primary and secondary schools.
- Approximate 7 minutes drive to one of Adelaide's best beaches.
- Private secure rear yard.
As you can see this home is going to be a great first home, downsizer, investment property or even a great upsizer! The potential is endless and awaits your viewing!
All floor plans, photos and text are for illustration purposes only and are not intended to be part of any contract. All measurements are approximate and details intended to be relied upon should be independently verified.
This fabulous three bedroom home boasts two living areas, plus a large games/rumpus room and a huge all weather outdoor entertaining area. You will also love the undercover parking for 2-3 vehicles. With its great floor plan it's easy to stamp your style on this one!
Additional features include:
- Zoned Air conditioning throughout, all bedrooms with fans.
- Brand new 20 panel solar system
- Roller shutters
- Neutral d?cor with loads of natural light.
- Built in robes to all bedrooms, plus linen press.
- Semi open plan kitchen/family/dining areas.
- Handy circular driveway with dual crossovers.
- Drive through under cover carport for 2-3 vehicles.
- Wilfred Taylor Reserve with playground, walking trails, bike tracks and more.
- Public transport, shopping centres and community sports are close by.
- Walking distance to local primary and secondary schools.
- Approximate 7 minutes drive to one of Adelaide's best beaches.
- Private secure rear yard.
As you can see this home is going to be a great first home, downsizer, investment property or even a great upsizer! The potential is endless and awaits your viewing!
All floor plans, photos and text are for illustration purposes only and are not intended to be part of any contract. All measurements are approximate and details intended to be relied upon should be independently verified.

