38E Taylors Lane, MILE END
Perfect Investment/Home opportunity minutes to the city
Very low maintenance and easy vare living available here with this attractive townhouse minutes from the City and main transport routes.
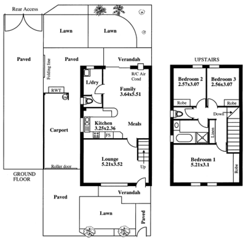
Featuring three bedrooms with built-ins, separate upstairs toilet and large master bedroom.
Downstairs there is a formal lounge room upon entry and functional kitchen with plenty of cupboard space overlooking the dine/family.
Downstairs laundry with handy second toilet and outside is a secure roller door garage, separate side laneway for additional parking and rear driveway access.
Also including alarm system and rc/ac and on a Community Title offering a great lifestyle in a pivotal location.
Featuring three bedrooms with built-ins, separate upstairs toilet and large master bedroom.
Downstairs there is a formal lounge room upon entry and functional kitchen with plenty of cupboard space overlooking the dine/family.
Downstairs laundry with handy second toilet and outside is a secure roller door garage, separate side laneway for additional parking and rear driveway access.
Also including alarm system and rc/ac and on a Community Title offering a great lifestyle in a pivotal location.

