4 Mildara Close, WOODCROFT
Simply Stunning
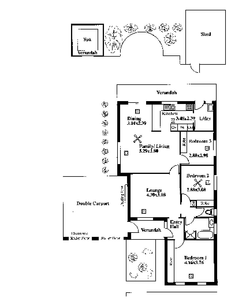
Located in this quiet and popular pocket of Woodcroft and surrounded by other quality properties, is this picture perfect home that offers a host of added extras. Presented to please both inside and out, it has great street appeal along with lovely low maintenance gardens. Situated only a short walk to most amenities including primary schools, child care centres, shops and public transport and finished with tasteful dcor and quality fixtures and fittings throughout, it represents a great opportunity for those starting out or looking to scale down to something more manageable yet still stylish. Featuring a great, functional floorplan consisting of three good size bedrooms, with floating floors and built in robes, two seperate living areas including a large formal lounge and a slate floored family room that is overlooked by the kitchen. There is ducted reverse cycle heating and cooling for year round comfort as well as a fantastic outdoor bubbling spa that is undercover in the gazebo great for relaxing after a hard days work and the double garage under main roof offers security for both of your cars, with one of the rollerdoors being automatic. Paved entertaining area, tool shed and too much to mention, this home really deserves your inspection. In a class of its own, this charming home will appeal to the most fastidious of buyers and represents an affordable yet classy villa to call home. If you have been looking for something special in this wonderful, family friendly area, this home could be it.

