41 Kenneth Road, MORPHETT VALE
UNDER CONTRACT by Jackie Scott of Ray White Port Noarlunga - Great Family Home with 2 Living Areas
This beautifully presented home is situated on a generous allotment of around 730m?, ideally set close to local shops, quality schools, parks, public transport, access to the southern expressway and more. It is an absolute must see for first home buyers, growing families or those seeking a superb investment opportunity.
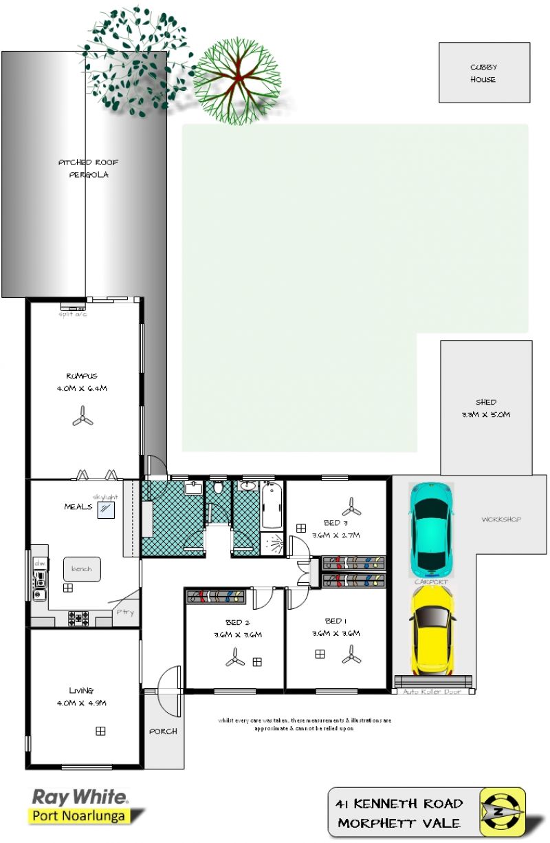
Offering a versatile floor plan, the home boasts a separate entry with beautiful polished timber floors, three good sized bedrooms - all with built-in robes & ceiling fans, open plan kitchen & meals area, a formal living area and a rumpus room. The updated kitchen features quality stainless steel appliances including gas cook-top, electric oven, a fisher & paykel two-drawer dishwasher, an island bench, walk-in pantry and plenty of cupboard storage. Positioned at the front of the home is the formal living area, generous in size and fitted with carpet, it could easily be set up as a home theatre room. Ideally situated at the other end of the home is a large rumpus room, complete with big picture windows to capture the natural sunlight and sliding doors that open to the outdoor entertaining area. Centrally located to all bedrooms, the family bathroom is neat & tidy with the convenience of a separate toilet. Additional features include ducted reverse cycle air conditioning, split system air conditioner in the rumpus room and solar hot water with gas hot water back up.
Set on a full-sized block with low maintenance gardens both front & back with plenty of green grass for the kids to enjoy and the backyard is fenced to ensure the pets are secure. The single carport is double in length and offers a handy storage area to the side plus a separate shed/workshop with concrete floor & power. Additional parking for extra vehicles or room for your caravan on the other side of the driveway. Outdoor entertaining, whether it's a large family gathering or a casual BBQ with friends, will be a breeze under the huge pitched roof pergola, complete with neutral paving.
For more information or inspection times, please call Jackie Scott from Ray white Port Noarlunga on 0409 090 959.
Proudly Presented by:-
Ray White Port Noarlunga
ww w.raywhiteportnoarlunga.com.au
2/32 Saltfleet Street, Port Noarlunga 5167
Ph: 08 8382 0029 Fax: 08 8326 1034
RLA 250556
Offering a versatile floor plan, the home boasts a separate entry with beautiful polished timber floors, three good sized bedrooms - all with built-in robes & ceiling fans, open plan kitchen & meals area, a formal living area and a rumpus room. The updated kitchen features quality stainless steel appliances including gas cook-top, electric oven, a fisher & paykel two-drawer dishwasher, an island bench, walk-in pantry and plenty of cupboard storage. Positioned at the front of the home is the formal living area, generous in size and fitted with carpet, it could easily be set up as a home theatre room. Ideally situated at the other end of the home is a large rumpus room, complete with big picture windows to capture the natural sunlight and sliding doors that open to the outdoor entertaining area. Centrally located to all bedrooms, the family bathroom is neat & tidy with the convenience of a separate toilet. Additional features include ducted reverse cycle air conditioning, split system air conditioner in the rumpus room and solar hot water with gas hot water back up.
Set on a full-sized block with low maintenance gardens both front & back with plenty of green grass for the kids to enjoy and the backyard is fenced to ensure the pets are secure. The single carport is double in length and offers a handy storage area to the side plus a separate shed/workshop with concrete floor & power. Additional parking for extra vehicles or room for your caravan on the other side of the driveway. Outdoor entertaining, whether it's a large family gathering or a casual BBQ with friends, will be a breeze under the huge pitched roof pergola, complete with neutral paving.
For more information or inspection times, please call Jackie Scott from Ray white Port Noarlunga on 0409 090 959.
Proudly Presented by:-
Ray White Port Noarlunga
ww w.raywhiteportnoarlunga.com.au
2/32 Saltfleet Street, Port Noarlunga 5167
Ph: 08 8382 0029 Fax: 08 8326 1034
RLA 250556

