41 Mead Street, BELAIR
Quality Built Residence on Level Landscaped Allotment
Open for inspection Saturday 8th March 3:30pm - 4:15pm
and Wednesday 12th March 5.30 - 5.45pm
This quality built "brick on flat" residence has been lovingly maintained by the same owners for almost 30 years.
The moment you enter you will appreciate the space and style this home has to offer. Wide open passages and rooms with no steps make it ideal for wheelchair access and for manoeuvring those large pieces of furniture around.
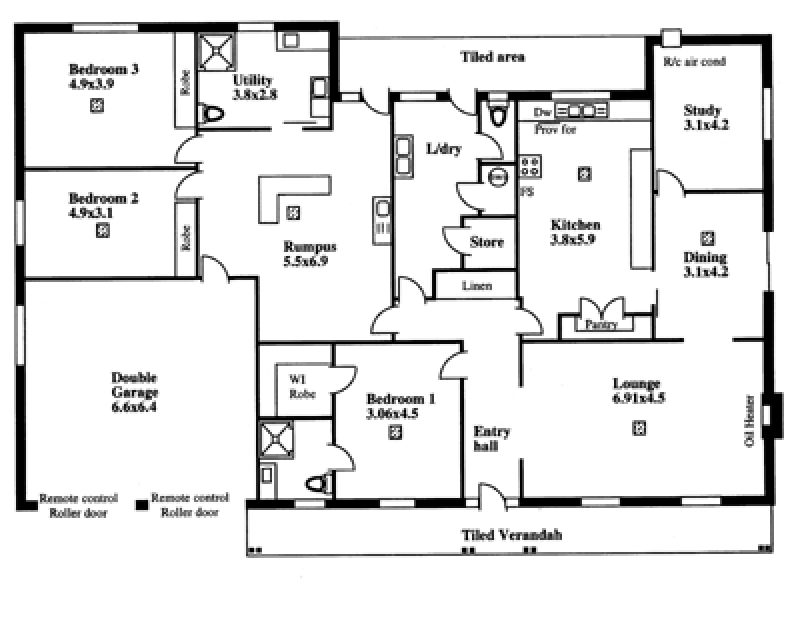
The large formal lounge leads into the spacious formal dining room which adjoins the country size eat in kitchen with ample cupboards and walk in pantry. The study or fourth double bedroom is also at this end of the home. The master bedroom with walk in robe and ensuite is privately located away from the "teenager retreat" or "Granny flat" situation which is under the main roof (see floor plan) and comprises a large living/family room with own kitchenette, two double bedrooms with robes and a large bathroom with laundry wash trough & washing machine taps.
Other features include ducted reverse cycle air conditioning, large rainwater tank which is plumbed to the kitchen & laundry, security system & screens and a double garage UMR with automatic roller doors.
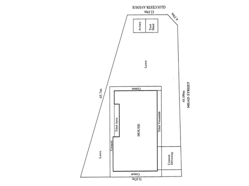
Outside are beautifully landscaped level gardens plus a brick tool shed and aviary with three phase power.
Auction Saturday 15th March at 11.30 a.m.
Price guide: Over $550,000
and Wednesday 12th March 5.30 - 5.45pm
This quality built "brick on flat" residence has been lovingly maintained by the same owners for almost 30 years.
The moment you enter you will appreciate the space and style this home has to offer. Wide open passages and rooms with no steps make it ideal for wheelchair access and for manoeuvring those large pieces of furniture around.
The large formal lounge leads into the spacious formal dining room which adjoins the country size eat in kitchen with ample cupboards and walk in pantry. The study or fourth double bedroom is also at this end of the home. The master bedroom with walk in robe and ensuite is privately located away from the "teenager retreat" or "Granny flat" situation which is under the main roof (see floor plan) and comprises a large living/family room with own kitchenette, two double bedrooms with robes and a large bathroom with laundry wash trough & washing machine taps.
Other features include ducted reverse cycle air conditioning, large rainwater tank which is plumbed to the kitchen & laundry, security system & screens and a double garage UMR with automatic roller doors.
Outside are beautifully landscaped level gardens plus a brick tool shed and aviary with three phase power.
Auction Saturday 15th March at 11.30 a.m.
Price guide: Over $550,000

