4/167 Payneham Road, ST PETERS
History comes alive!
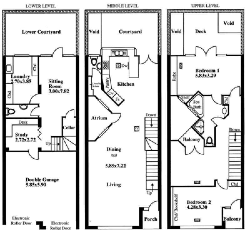
A combination of the old and the new in this refreshing and inspiring change of pace. Perfect for busy executives who love entertaining this bright airy townhouse set over 3 levels combines the rough texture of feature bricks with the contemporary warmth of timber. Access from the plaza level is to an enormous casual living and entertaining area with an open kitchen, rear patio and central atrium. Lovely bright colour schemes throughout the home compliment the timber architraves, skirting's, windows and doors. Upstairs is the main bathroom with spa bath and 2 large bedrooms (both with built in robes and balconies), whilst there are toilets on all 3 levels. The upstairs level has a T.V. room and the basement provides a study or 3rd bedroom plus a downstairs living area. The list of features are endless including ducted reverse cycle air conditioning, security gates, double lock up garage with auto roller door, undercover visitor park, cellar, ducted vacuum,linen chute to the laundry and entry access is from the lane way. In short for sale here is a lifestyle in this upmarket safe and secure location which was formerly the site of the "Old Jam Factory". Register your interest now for inspection after November 11th 2006 and witness for yourself how this home transcends the common.

