42 Beaconsfield Terrace, ASCOT PARK
A Great Investment Opportunity
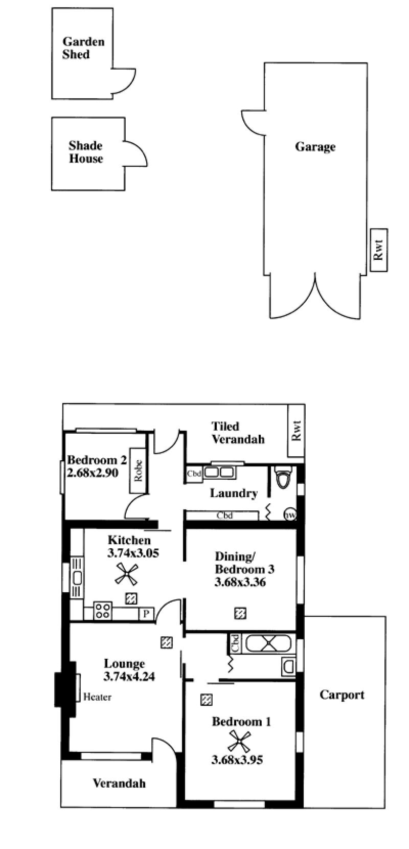
Perfect for the first home buyer, this lovely little 2 bedroom home has so much character, it is loaded with charm and potential. It will really appeal to the "artist" in you. Carpeted throughout, functional gas kitchen, air conditioning. Set in lovely, tranquil gardens close to shops, transport and all amenities. Definitely worth a look in this sought after area. Secure parking.
Barrie Magain 0418 818 089
RLA 46284
Barrie Magain 0418 818 089
RLA 46284

