43 Horseshoe Drive, ABERFOYLE PARK
Beautiful Family Home
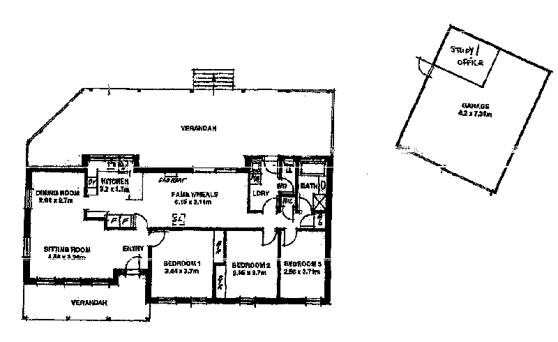
Dont miss out on this attractive, affordable home in the popular 'Woodlea Estate' just a short walk to tennis courts, reserve and playground. A family friendly area for those looking for their first home in this great location. Set on a large 848 sqm block and offering a sunken lounge, formal dine, updated kitchen with dishwasher adjacent the family/meals area, three bedrooms, two with built ins and ducted evaporative cooling and gas heating for year round comfort. Outside is perfect for the young couple or family who like to entertain in the paved verandah area while there is still plenty of room for the kids to play - not to mention the double garage for secure parking, complete with a home office/study room with air conditioning, ideal for those who work from home. This lovely home will appeal to the astute southern buyer who wants a great location, lots of extras and at an affordable price.

