49 Conmurra Avenue, EDWARDSTOWN
Ideal Outdoor Entertaining
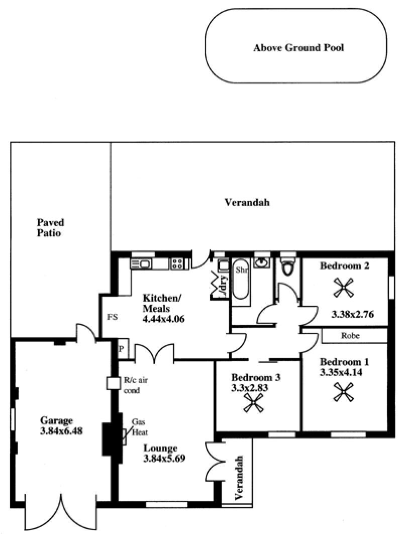
Conveniently located this 3 bedroom home on a large 700m2 allotment provides for ideal summer time entertaining around the pool and rear verandah. The home offers good sized bedrooms and polished timber floors boards in the generous lounge complete with an air conditioner. The kitchen meals area has been updated and those with many cars will love the two driveways and garage. A great first home or investment opportunity given the strong rental market. Register now, due for release late May 2006

