5 Summerhill Close, REYNELLA
Something Special
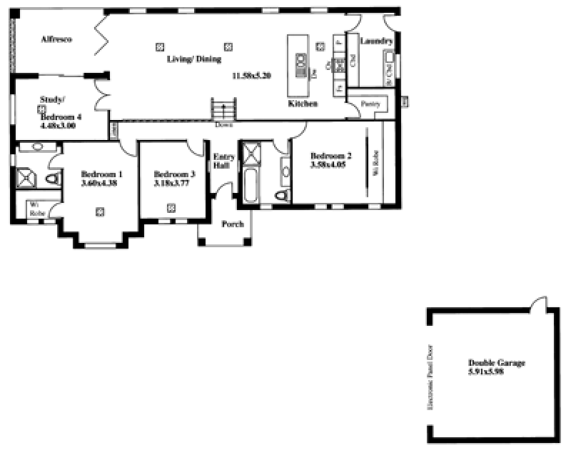
Only two years young and located on a huge 1167 sqm block that is surrounded by other quality homes, is this stunning Dechellis' built home. Situated in a prime position to take in the uninterrupted views of the rolling hills and in this popular, new estate, this property will impress the most fastidious of buyers. Built with entertaining and executive living in mind, it features a host of extras as well as absolute quality fixtures and fittings throughout. The spacious entrance introduces you to the modern, split level design, floating floors and 12 ft ceilings, with the 219 square metre floorplan consisting of four good size bedrooms, two stunning bathrooms, walk in robes and the impressive open plan living area that is overlooked by the exquisite kitchen, complete with walk in pantry, stainless steel appliances and dishwasher. Outside offers an undercover entertaining area with plumbed in gas for the BBQ ideal for relaxing with friends and enjoying the outlook, there is also a courtyard area as well as plenty of room to complete this magnificent property with a swimming pool terraced gardens the choice is yours! Offering all the conveniences you would expect including a double garage with automatic panel lift door, ducted reverse cycle heating and cooling, irrigation and an abundance of storage. Take advantage of this almost new, affordable home that offers this beautiful setting whilst only 10 minutes to Westfield Marion and only a short drive to shops, transport, the expressway and schools.

