5 The Triangle, WARRADALE
When location matters!
Set in a lovely, quiet pocket of Warradale is this ideal opportunity for home buyers and investors alike.
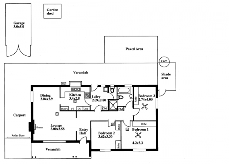
Within minutes walk to local shops on Diagonal Road and minutes drive to the Bay and beaches, this 3 bedroom home (all with built-in robes) has a carpeted L-shape living/dine with heating, updated kitchen with dishwasher, renovated bathroom and additional second toilet.
Rear verandah and entertaining overlooking the good size gardens, shed and fruit trees. Car parking is a roller door carport.
Call today for your private viewing.
Within minutes walk to local shops on Diagonal Road and minutes drive to the Bay and beaches, this 3 bedroom home (all with built-in robes) has a carpeted L-shape living/dine with heating, updated kitchen with dishwasher, renovated bathroom and additional second toilet.
Rear verandah and entertaining overlooking the good size gardens, shed and fruit trees. Car parking is a roller door carport.
Call today for your private viewing.

