51 Adelaide Terrace, ASCOT PARK
Large allotment with character home
Set on a great size allotment of just under 1000sqm, this character stone fronted home offers opportunities galore for the investor, home buyer with a vision for future improvements or developer.
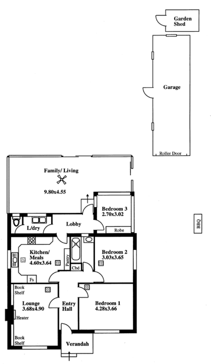
The home set towards the front of the block offers two large double bedrooms, spacious kitchen/dine, formal lounge with oil heater and the large rear rumpus room with additional 3rd bedroom or study. The house has security shutters on the windows. For secure parking, there is a double length garage.
Currently tenanted out, viewing by appointment so register your details by emailing andrew@barriemagain.com.au or calling 8277 1777.
The home set towards the front of the block offers two large double bedrooms, spacious kitchen/dine, formal lounge with oil heater and the large rear rumpus room with additional 3rd bedroom or study. The house has security shutters on the windows. For secure parking, there is a double length garage.
Currently tenanted out, viewing by appointment so register your details by emailing andrew@barriemagain.com.au or calling 8277 1777.

