55 Russell Street, ADELAIDE
Sold By Andrew Downing, The City Specialist!
Immaculate Torrens Title Town Home With Large Living Areas Inside & Out!
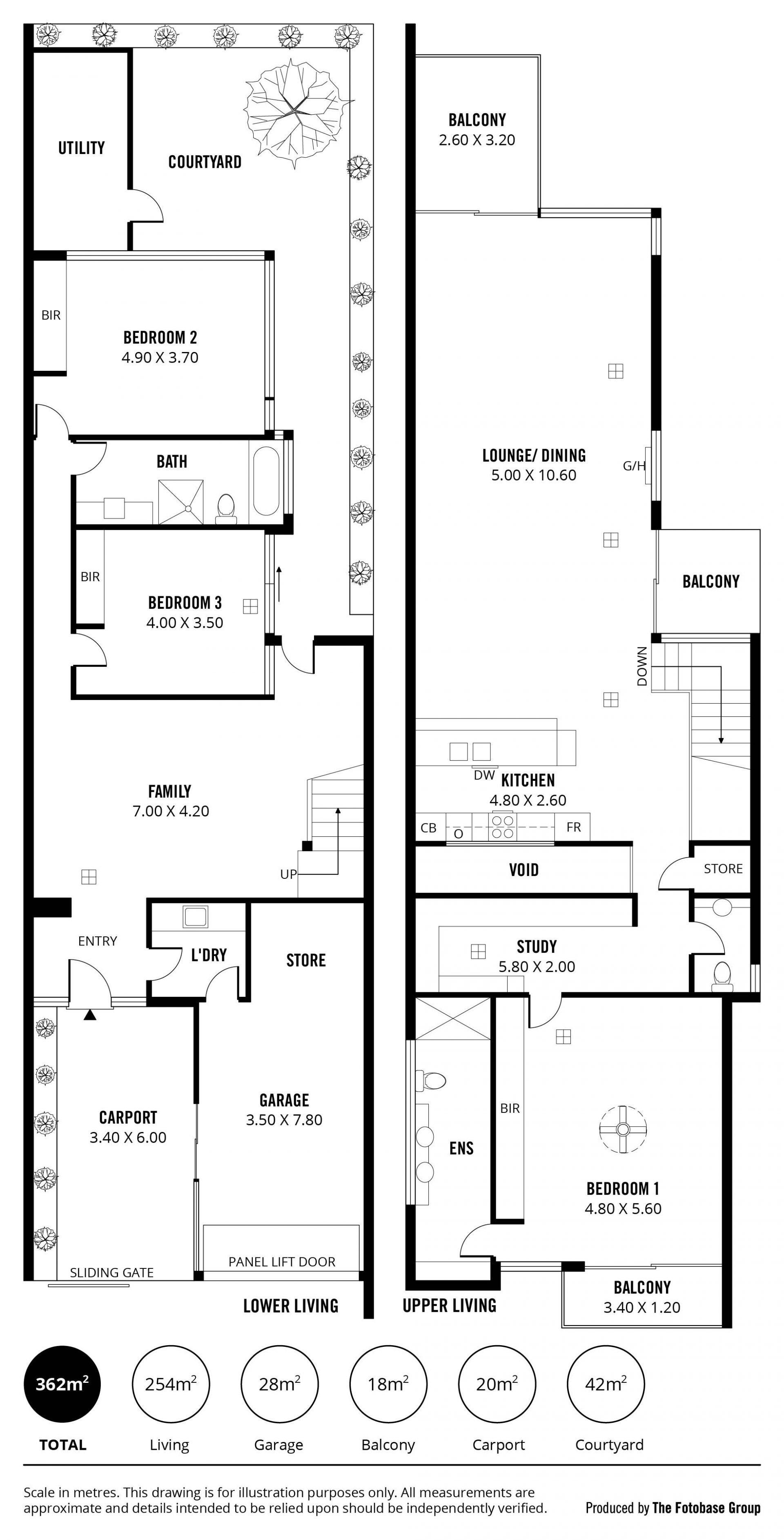
This stunning, architecturally designed home built in 2011 is perfect for anyone looking to move into the city without compromising on size and quality. With over 300sqm of luxurious living over two floors this amazing home will satisfy even the most fastidious of buyers.
With versatile and adaptive spaces throughout incorporating a mix of polished Sydney Blue Gum hardwood flooring, Wool carpets, stunning stone bench tops, Miele Stainless Steel appliances and a high end commercial grade fit out you have all the ingredients for an exciting low maintenance, lavish city lifestyle.
The Why To Buy 🙂
3 Large bedrooms
King size master suite with stunning ensuite & huge built in robe & ceiling fan
Bedrooms 2 & 3 both have built in robes
Expansive dining/ living area with gorgeous solid wood flooring
2nd Separate living area or home theatre room
Spectacular Chef's kitchen with everything you could want to cook up a storm
Large separate study off of main bedroom
2 Opulent bathrooms + upstairs powder room for guests
Ducted reverse cycle air conditioning & gas space heater
Secure access, alarm system and video intercom
Cbus lighting throughout
3 Usable balconies perfect for cooking, entertaining and relaxing
Beautiful and private rear courtyard with established greenery and discreet utility room and automatic irrigation
Separate laundry
Double side by side garage with additional storage
There are too many features to list so please contact us for an inspection!
Properties of this size and standard rarely become available in the City and will ideally suit anyone looking for an exciting low maintenance lifestyle without compromising on size and luxury with maybe the option to work out of also.
Perfectly positioned in the eclectic South West/Central Market precinct surrounded by many new funky cafe's, Wine Bars and entertainment venues as well as the iconic Gouger St and Central Markets all on your doorstep.
Great schools are close by with Sturt St Primary school, Both Adelaide Public High schools & Pulteney Grammar School all just a short walk away or catch the available public transport.
For any further information including inspection times please contact,
Andrew Downing, The City Specialist on 0404 882 311
This stunning, architecturally designed home built in 2011 is perfect for anyone looking to move into the city without compromising on size and quality. With over 300sqm of luxurious living over two floors this amazing home will satisfy even the most fastidious of buyers.
With versatile and adaptive spaces throughout incorporating a mix of polished Sydney Blue Gum hardwood flooring, Wool carpets, stunning stone bench tops, Miele Stainless Steel appliances and a high end commercial grade fit out you have all the ingredients for an exciting low maintenance, lavish city lifestyle.
The Why To Buy 🙂
3 Large bedrooms
King size master suite with stunning ensuite & huge built in robe & ceiling fan
Bedrooms 2 & 3 both have built in robes
Expansive dining/ living area with gorgeous solid wood flooring
2nd Separate living area or home theatre room
Spectacular Chef's kitchen with everything you could want to cook up a storm
Large separate study off of main bedroom
2 Opulent bathrooms + upstairs powder room for guests
Ducted reverse cycle air conditioning & gas space heater
Secure access, alarm system and video intercom
Cbus lighting throughout
3 Usable balconies perfect for cooking, entertaining and relaxing
Beautiful and private rear courtyard with established greenery and discreet utility room and automatic irrigation
Separate laundry
Double side by side garage with additional storage
There are too many features to list so please contact us for an inspection!
Properties of this size and standard rarely become available in the City and will ideally suit anyone looking for an exciting low maintenance lifestyle without compromising on size and luxury with maybe the option to work out of also.
Perfectly positioned in the eclectic South West/Central Market precinct surrounded by many new funky cafe's, Wine Bars and entertainment venues as well as the iconic Gouger St and Central Markets all on your doorstep.
Great schools are close by with Sturt St Primary school, Both Adelaide Public High schools & Pulteney Grammar School all just a short walk away or catch the available public transport.
For any further information including inspection times please contact,
Andrew Downing, The City Specialist on 0404 882 311

