6 Tripoli Road, Happy Valley
Low maintenance family living in a popular pocket of Happy Valley
Please phone Danielle Comer and Rachael Farror for viewing times.
Located amongst the scenic rolling hills of Happy Valley with numerous upgrades and plenty of room still to add your own touches, you'll be sure to put this spacious family home at the very top of your list. With the fantastic Fountain Valley Reserve only a few minutes walk away as well as being located close to the Fountain Valley Medical Centre, local schools, shops, and public transport options, it's a fantastic opportunity for investors and those wishing to move into this popular location.
A clever floor plan begins with an impressive lounge and dining, where a stunning vaulted ceiling, timber floors, and a neutral palette bathed in natural light through the multiple skylights throughout, welcome you with open arms. With a refrigeration cooling wall unit, plus a gas log combustion fire, life will be comfortable all year round.
It will be love at first sight for those who hold the kitchen as the heart of the home. Adjacent to the dining, and with a timeless country style it features an abundance of cupboard and preparation space, and upgraded appliances, it's sure to satisfy the highest of culinary expectations.
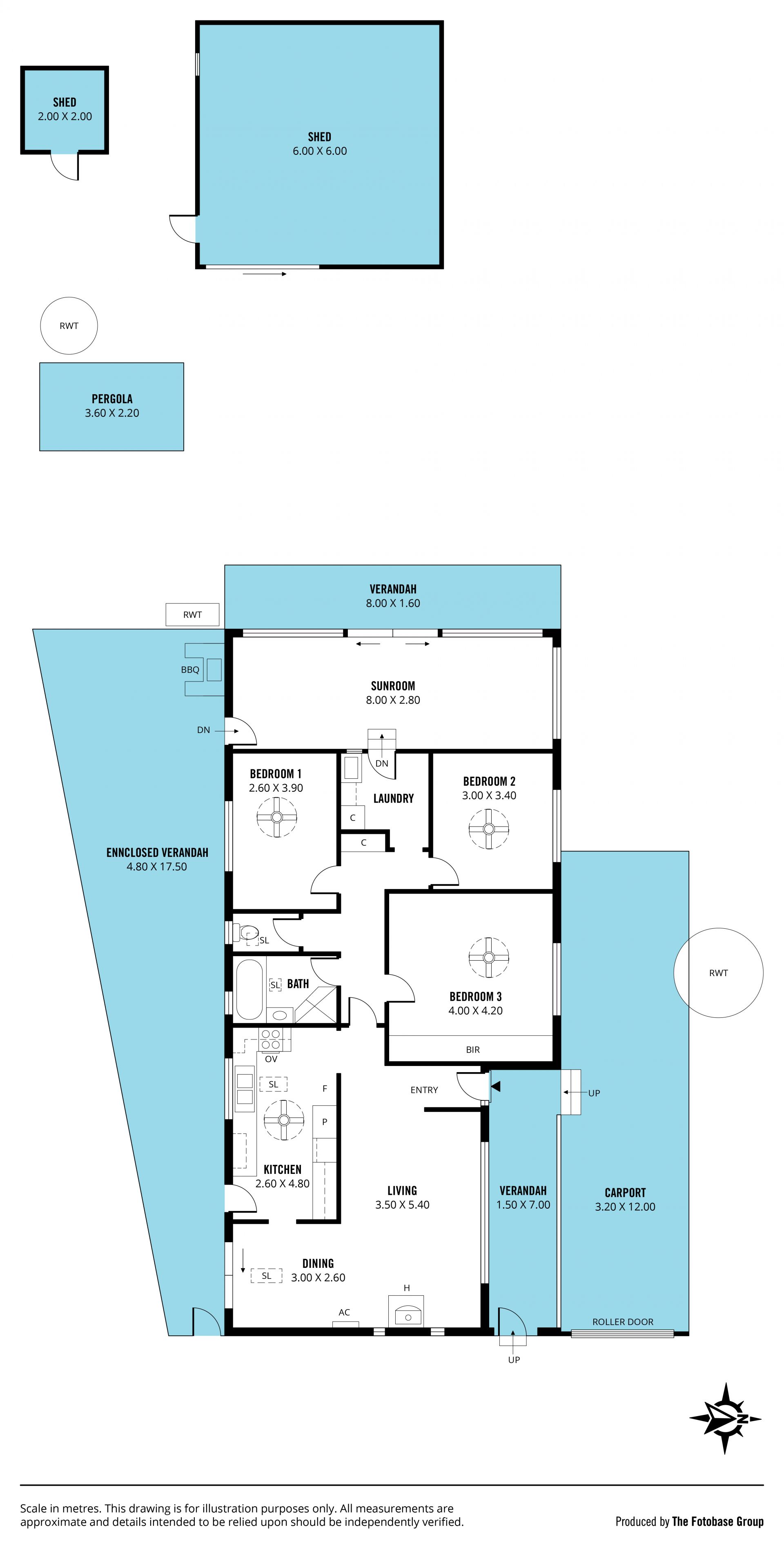
The home's three bedrooms include a great-sized master with a built-in robe, while all bedrooms feature ceiling fans and easy access to the renovated main bathroom, with a bath, vanity, shower, and separate toilet.
Glass sliding doors from the dining area allow a view and seamless access to a paved and enclosed entertaining area running along the side of the home, featuring a built-in BBQ and direct access to the home's rear sunroom which is an ideal home office or teenage retreat. Meanwhile, the handyman of the family will love the addition of a large shed with a concrete floor and power connected.
Valuable extras include; a triple-length carport with an automatic roller door, automatic watering system, NBN ready, solar hot water, a 3kW solar panel system with 30 panels, two rainwater tanks plumbed to the house, plus a small garden shed.
Disclaimer: All floorplans, photos and text are for illustration purposes only and are not intended to be part of any contract. All measurements are approximate and details intended to be relied upon should be independently verified.
(RLA 222182)
Magain Real Estate Happy Valley
Located amongst the scenic rolling hills of Happy Valley with numerous upgrades and plenty of room still to add your own touches, you'll be sure to put this spacious family home at the very top of your list. With the fantastic Fountain Valley Reserve only a few minutes walk away as well as being located close to the Fountain Valley Medical Centre, local schools, shops, and public transport options, it's a fantastic opportunity for investors and those wishing to move into this popular location.
A clever floor plan begins with an impressive lounge and dining, where a stunning vaulted ceiling, timber floors, and a neutral palette bathed in natural light through the multiple skylights throughout, welcome you with open arms. With a refrigeration cooling wall unit, plus a gas log combustion fire, life will be comfortable all year round.
It will be love at first sight for those who hold the kitchen as the heart of the home. Adjacent to the dining, and with a timeless country style it features an abundance of cupboard and preparation space, and upgraded appliances, it's sure to satisfy the highest of culinary expectations.
The home's three bedrooms include a great-sized master with a built-in robe, while all bedrooms feature ceiling fans and easy access to the renovated main bathroom, with a bath, vanity, shower, and separate toilet.
Glass sliding doors from the dining area allow a view and seamless access to a paved and enclosed entertaining area running along the side of the home, featuring a built-in BBQ and direct access to the home's rear sunroom which is an ideal home office or teenage retreat. Meanwhile, the handyman of the family will love the addition of a large shed with a concrete floor and power connected.
Valuable extras include; a triple-length carport with an automatic roller door, automatic watering system, NBN ready, solar hot water, a 3kW solar panel system with 30 panels, two rainwater tanks plumbed to the house, plus a small garden shed.
Disclaimer: All floorplans, photos and text are for illustration purposes only and are not intended to be part of any contract. All measurements are approximate and details intended to be relied upon should be independently verified.
(RLA 222182)
Magain Real Estate Happy Valley

